EasyManua.ls Logo

WattMaster OE230 - Outside Air Sensor OE250; Installation and Safety; Technical Specifications; Data Chart and Notes

Default Icon
24 pages
Print Icon
To Next Page IconTo Next Page
To Next Page IconTo Next Page
To Previous Page IconTo Previous Page
To Previous Page IconTo Previous Page
Loading...
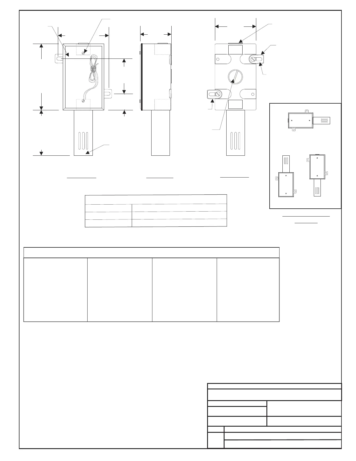
4.)All Wiring To Be In Accordance With
Local And National Electrical Codes
And Specifications.
3.)Gasket Must Be Installed Under Cover
Plate To Provide Raintight Seal.
Rainwater Can Damage Sensor!
Temperature Sensor Resistance/Voltage Chart
Temp Resistance* Voltage
F Ohms @ Input*
-10.............93333........4.620
-5...............80531........4.550
0 ...............69822 ........4.474
5 ...............60552 ........4.390
10..............52500........4.297
15..............45902........4.200
20..............40147........4.095
25..............35165........3.982
30..............30805........3.862
35..............27140........3.737
40..............23874........3.605
°
Temp Resistance* Voltage
F Ohms @ Input*°
45..............21094........3.470
50..............18655........3.330
52..............17799........3.275
54..............16956........3.217
56..............16164........3.160
58..............15385........3.100
60..............14681........3.042
62..............14014........2.985
64..............13382........2.927
66..............12758........2.867
68..............12191........2.810
Temp Resistance* Voltage
F Ohms @ Input*°
69..............11906 ........2.780
70..............11652 ........2.752
71..............11379 ........2.722
72..............11136 ........2.695
73..............10878........2.665
74..............10625........2.635
75..............10398........2.607
76..............10158........2.570
78..............9711 ..........2.520
80..............9302..........2.465
82..............8893..........2.407
Temp Resistance* Voltage
F Ohms @ Input*
84..............8514..........2.352
86..............8153..........2.297
88..............7805..........2.242
90..............7472..........2.187
95..............6716..........2.055
100............6047..........1.927
105............5453..........1.805
110 ............4923..........1.687
115 ............4449..........1.575
120............4030..........1.469
°
2.)Unused Conduit Opening(s) Must
Have Closure Plugs Installed And Must
Be Coated with Sealing Compound To
Provide Raintight Seal. Water Can
Damage Sensor!
1.)The Outside Air Sensor Must Be
Mounted In A Vertical Position As
Shown (Sensor Tube Pointing
Down).
Sensor Must Be Located
Where It Will Not Be Affected By
Direct Sunlight Or Heat Producing
Equipment. If Possible Mount Under
Roof Eave Or Similar Protected
Location. If Sensor Is Not Located
As Specified, Erroneous Outside Air
Temperature Readings Will Result.
Water Must Not Be
Allowed To Stand In Sensor
Tube. Rainwater Will Damage
Sensor.
*Chart Notes:
1. Use the resistance column to check the thermistor sensor while disconnected from the controllers (not powered).
2. Use the voltage column to check sensors while connected to powered controllers. Read voltage with meter set on DC
volts. Place the "-"(minus) lead on GND terminal and the "+"(plus) lead on the sensor input terminal being investigated. If
the voltage is above 5.08 VDC, then the sensor or wiring is "open." If the voltage is less than 0.05 VDC, the sensor or
wiring is shorted.
Outside Air Sensor OE250
Notes:
Closure Plug
CAUTION!
See Note 2
Gasketed Cover
CAUTION!
See Note3
Cover
Mounting
Screw - Typ.
Mounting Tab
& Screw - Typ.
0.21" Dia. x 0.73
Lg. Slot - Typ.
4.50”
2.25”
3.00”
FILENAME
DATE:
B. CREWS
DESCRIPTION:
PAGE
DRAWN BY:
Outside Air Temperature Sensor
1
JOB NAME
07/13/15
G-OE250-OAS-PDWG.CDR
OE250
Front View Side View
Back View
Closure Plug
CAUTION!
See Note 2
Sensor Tube
CAUTION!
See Note 1
Mounting Tab
& Screws - Typ.
Correct
Incorrect
Incorrect
See Note #1
Sensor Mounting
Postion
2.70”
1.13”
2.30”
3.00”
Technical Specifications
Sensor Element:
Type III Thermistor 10k ohm @ 77ºF
Accuracy:
± 0.4º F between 40º F to 95º F
Range:
-30º F to 150º F