EasyManua.ls Logo

WattMaster OE230 - E-BUS Adapter Hub HZ-EBC-248; Description and Specifications

Default Icon
24 pages
Print Icon
To Next Page IconTo Next Page
To Next Page IconTo Next Page
To Previous Page IconTo Previous Page
To Previous Page IconTo Previous Page
Loading...
Form: AZ2-HZ-EBC-248-EBUS-Adapter-1B.doc Page 1 of 1
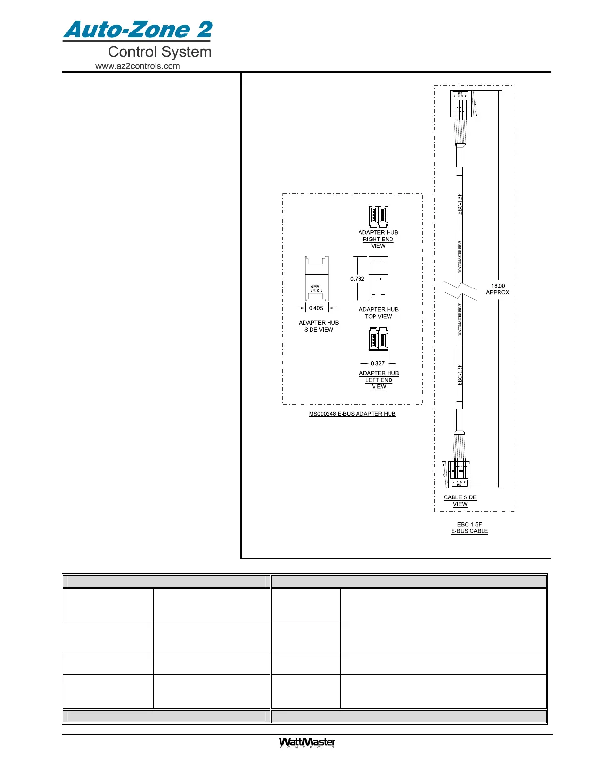
Description
The HZ-EBC-248 is comprised of
the MS000248 E-BUS Adapter Hub
and a 1.5 Foot EBC Cable (Part
No. EBC-1.5F).
The E-BUS Adapter Hub is used to
provide a connection point for
multiple E-BUS Sensors or AZ 2
Expansion Modules. This E-BUS
Adapter Hub has four ports. One
port is used to connect the Hub to
an E-BUS Expansion Port on the
AZ2 or GPC-XP Controller or an
AZ 2 Expansion Module using the
supplied EBC-1.5F cable. This
leaves three ports available for E-
BUS Sensors and other Expansion
Modules.
The EBC Cable is a plenum-rated
high flex cable with EBC
Connectors on each end to allow
for multiple connections of the E-
BUS cables between the Sensors,
Modules, and the AZ 2 or GPC-XP
Controllers.
HZ-EBC-248 - E-BUS Adapter Hub
with 1.5 Ft. EBC Cable
Technical Data HZ-EBC-248 E-BUS Adapter Hub with 1.5 Ft. EBC Cable
EBC E-BUS Cable
Available Length
and Part Number
EBC-1.5F (1.5 Foot) Current Rating
of Cable Wire
300 Vrms Min = 10.15 Ohms per 1000 feet @ 20
Deg Celsius, Nominal
Cable Type Plenum-rated High Flex
Wire
Wire Colors Red/Black First Pair; White/Blue Second Pair
Wire Size 19 Strands of 32 Gage
Wire, 4 Conductor
UL Listing No. CMP/CL3P/FPLP
Terminations Hub - (4) EBC Connectors
Cable – 2 EBC Connectors
Cable Sheath
Color
White, Plenum Rated CL3P/CMP
with “WATTMASTER EBUS”
marking every foot.
Three Year Warranty
WattMaster reserves the right to change specifications without notice