EasyManua.ls Logo

WattMaster OE230 - Building Static Pressure Sensor OE258-01; Description and Specifications

Default Icon
24 pages
Print Icon
To Next Page IconTo Next Page
To Next Page IconTo Next Page
To Previous Page IconTo Previous Page
To Previous Page IconTo Previous Page
Loading...
Form: AZ2-OE258-01-BPS-01B.doc Page 1 of 1
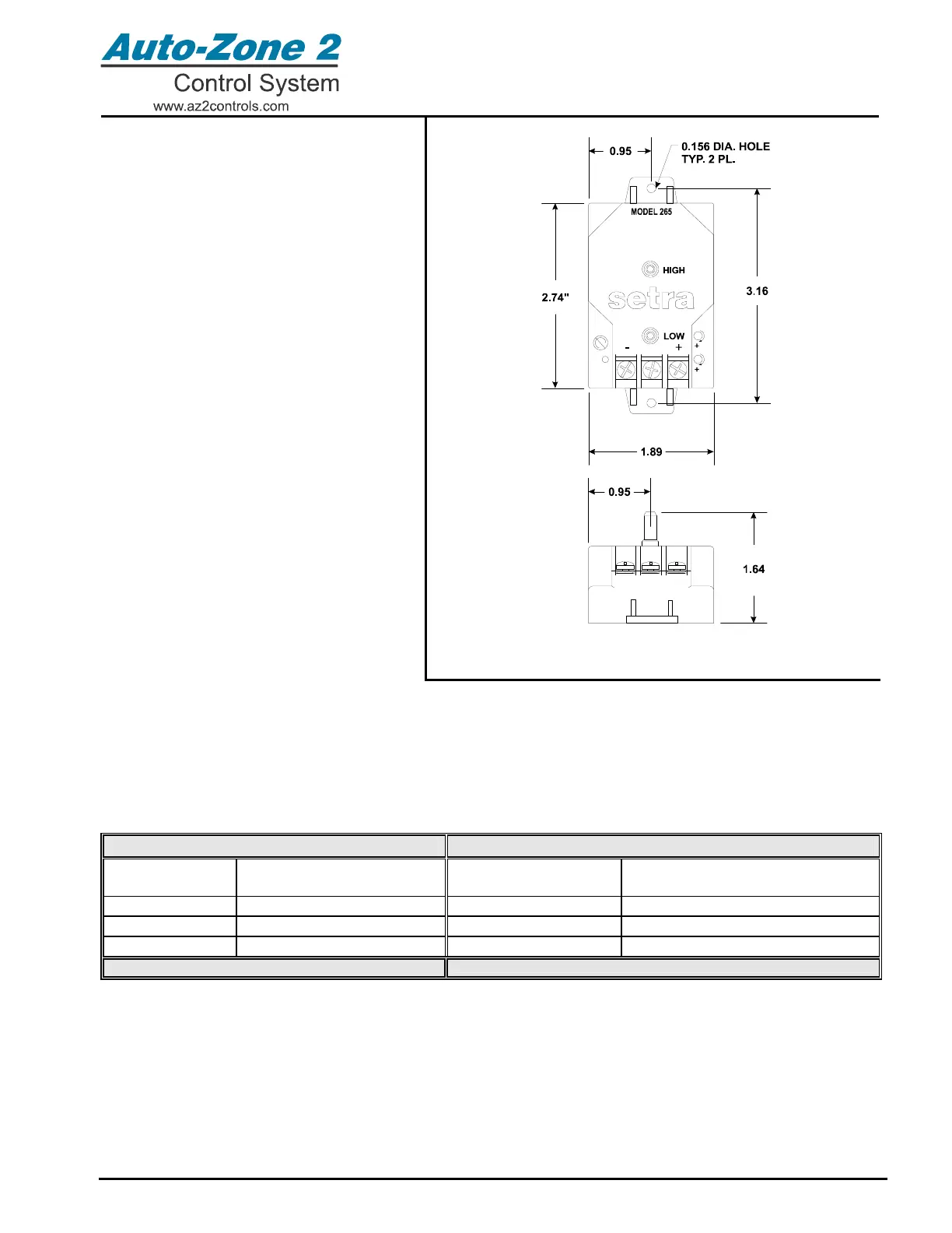
Description
The OE258-01 Building Static Pressure
Sensor is used to sense static pressure in
applications where monitoring of building
static pressure is required to insure the
building maintains the proper air
pressurization.
The OE258-01 Building Pressure Sensor
case is molded from fire retardant glass filled
polyester. The sensor utilizes a tensioned
stainless steel diaphragm and insulated
stainless steel electrode. This arrangement
allows up to 10 PSI overpressure without
damage to the unit. The sensor provides a
0.0 to 5.0 VDC output in response to a –0.25
to +0.25 inch WC pressure differential.
Accuracy is 1% of full scale of the sensor.
For easy wiring the OE258-01 Building
Static Pressure Sensor has (3) 6-32 screw
terminal wiring connectors. The sensor has
(2) ¼” barbed fittings provided for the
connection of tubing to the high and low
pressure ports.
The OE258-01 Static Pressure Sensor is
designed to be mounted to a flat surface by
means of the (2) 0.156 diameter holes
provided in the sensor casing. For accurate
readings the sensor must be mounted in a
vertical position.
OE258-01 Building Static
Pressure Sensor
Technical Data OE258-01 Building Static Pressure Sensor
Operating
Pressure Range
-0.25” WC to +0.25” WC
Pressure Differential
Power Input
Power Output
24 VDC
0 to 5 VDC
Operating Temp
0F to 150F
Hysteresis
0.1% of full scale
Circuit 3 Wire Non-repeatability
0.05% of full scale
Accuracy
1% of full scale
Weight 3 ounces
Eighteen Month Warranty
WattMaster reserves the right to change specifications without notice