EasyManua.ls Logo

WattMaster OE230 - Outside Air Humidity Sensor OE265-13; Installation and Mounting; Technical Data

Default Icon
24 pages
Print Icon
To Next Page IconTo Next Page
To Next Page IconTo Next Page
To Previous Page IconTo Previous Page
To Previous Page IconTo Previous Page
Loading...
JOB NAME
FILE NAME
G-OE265-13B-OAHUMID-1E.PDF
DATE: 08/17/11
PAGE
DESCRIPTION
Outside Air Humidity Sensor 0-5 VDC
DRAWN BY: B. CREWS
Notes:
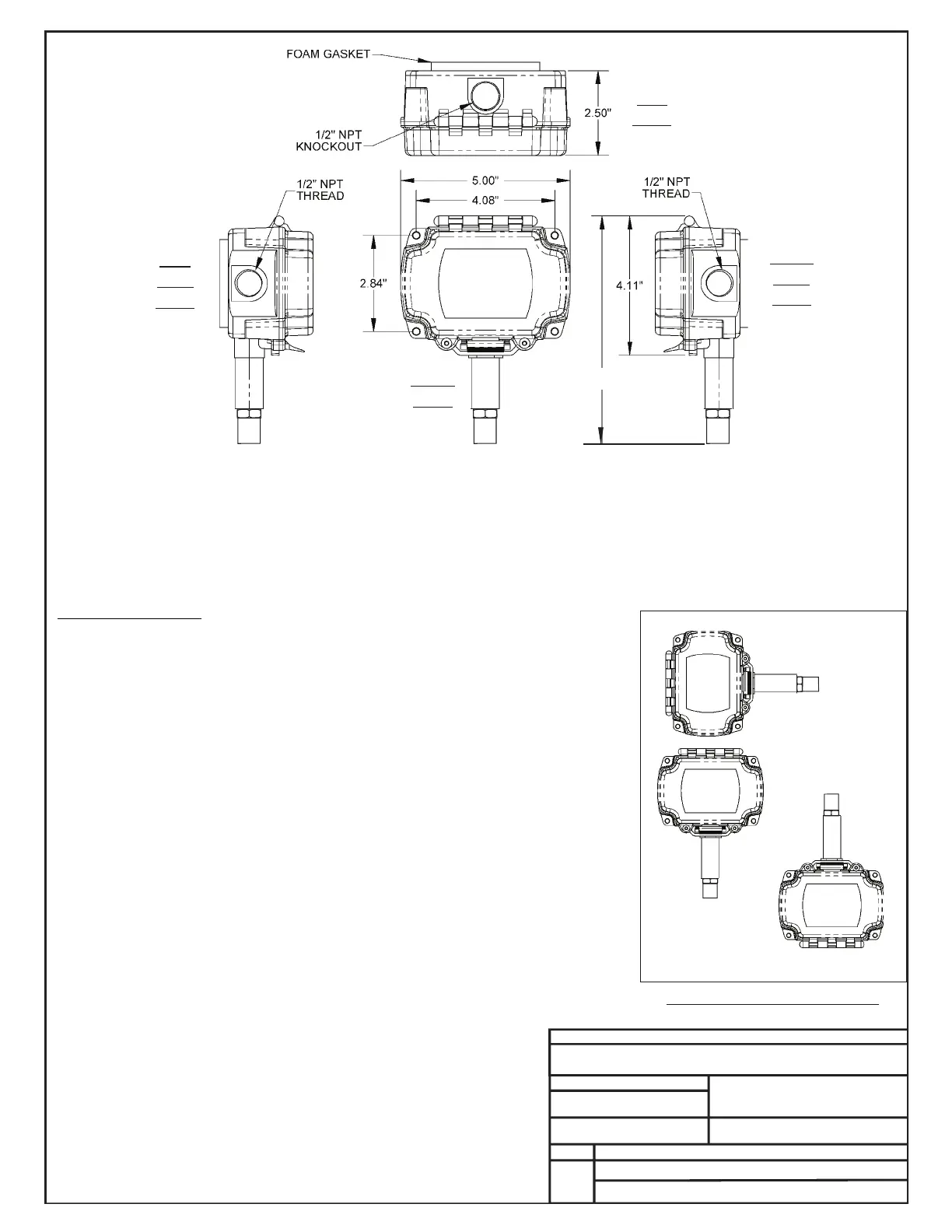
1.) The Outside Air Humidity Sensor Must
Be Mounted In A Vertical Position As Shown
(Sensor Tube Pointing Down). Water Must
Not Be Allowed To Stand In Sensor Tube,
it Will Cause Erroneous Sensor
Readings. The Sensor will recover when
it dries out. Sensor Must Be Located
Where It Will Not Be Affected By Direct
Sunlight Or Heat Producing Equipment. If
Possible Mount Under Roof Eave Or Similar
Protected Location. If Sensor Is Not
Located As Specified, Erroneous Outside Air
Humidity Readings Will Result.
2.) Unused Conduit Opening(s) Must
Not be Knocked Out to Prevent Dust
or Insects From Infiltrating the Sensor
Electrical Box.
3.) All Wiring To Be In Accordance
With Local And National Electrical
Codes And Specifications.
1 of 2
Installation Instructions:
1.) Place The Outside Air Humidity Sensor Where It Is To Be Mounted. See Note 1 Below For
Important Mounting Information And Considerations. Mark The (4) Mounting Holes. Secure The
Humidity Sensor By Using The Four #10 X 1.5" Self Tapping Screws Included With The Humidity
Sensor.
2.) Open The Cover by Moving the Latch to the Side And Install Your Conduit Connectors. The
Cover Must Always Be Opened Before Attempting To Punch Out The Knockouts.
3.) Connect The Wires To The Corresponding Sensor Wire Leads Per The Wiring Diagram On
Page 2 Of This Drawing. Insert the Wires Into the Sealant Filled Connectors Provided and Crimp.
Lightly Tug on the Wire to Assure a Good Mechanical Connection
4.) Close The Cover by Pushing Down Until the Latch Snaps Into Place. Be Careful Not To Pinch
The Sensor Wires When Closing The Housing Cover.
5.) Verify That You Are Getting A Humidity Reading On Your Control System.
Please Note That It
May Take Ten To Twenty Minutes For The Sensor Reading To Stabilize Upon Initial Power Up.
OE265-13 BAPI
Right
Side
Left
Side
Top
View
Front
View
View
View
7.21
Sensor Mounting Position
INCORRECT
CORRECT
INCORRECT