EasyManua.ls Logo

WattMaster OE230 - Duct Mounted CO2 Sensor OE256-07; Description and Applications; Mounting and Specifications

Default Icon
24 pages
Print Icon
To Next Page IconTo Next Page
To Next Page IconTo Next Page
To Previous Page IconTo Previous Page
To Previous Page IconTo Previous Page
Loading...
Form: AZ2-OE256-07-E-BUS-DUCT-CO2-01B.doc Page 1 of 1
Description
The Duct Mounted E-BUS Digital CO
2
Sensor is
used with the AZ 2 Controller (OE630-23-AZ2) or
the GPC-XP Controller (OE338-23-GPCXP) to
monitor and control Return Air CO
2
levels in the
building environment.
Some typical applications are:
Demand Control Ventilation
Controlling ventilation in a building where
the occupancy varies frequently
Controlling ventilation based on CO
2
levels to ensure excess outdoor air is not
causing energy waste
To ensure good air distribution throughout
building zones
The OE256-07 is used for monitoring duct CO
2
levels and is designed for permanent mounting in
the Return Air duct. It utilizes an aspiration box to
accurately capture CO
2
levels in the duct. It con-
nects to the AZ 2 or GPC-XP Controller by using
an E-BUS cable with E-BUS connectors.
The OE256-07 CO
2
Sensor uses non-dispersive
infrared (NDIR) technology and has a measure-
ment range of 0-2000 ppm.
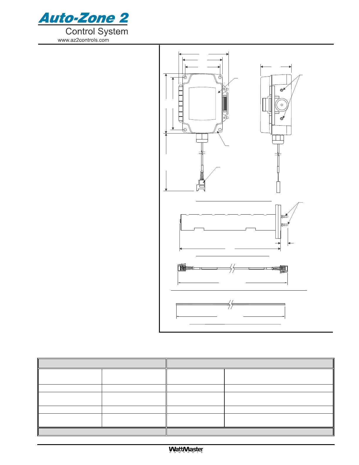
Mounting
The OE256-07 CO
2
Sensor is housed in an aspi-
ration box. A conduit clamp is provided to help
seal the opening where the sensor cabling pene-
trates the aspiration box housing. The sensor has
an E-BUS connector for connecting it to the pro-
vided EBC E-BUS cable. The EBC E-BUS Cable
connects to the AZ 2 or GPC-XP Controller or E-
BUS Hub and then to the AZ 2 or GPC-XP Con-
troller. The sensor and aspiration box assembly
is mounted and secured to the ductwork with the
(2) supplied sheet metal screws. The remote
pickup tube assembly is mounted separately to
the ductwork by first cutting a 1
1
/
4
” diameter hole
in the ductwork wall. The remote pickup tube is
then inserted into the hole. The remote pickup
tube is then secured to the ductwork by inserting (2) supplied sheet metal screws through the (2) mounting holes in the remote
pickup tube mounting plate and securing the remote pickup tube assembly by screwing it to the ductwork using a manual or
powered screw driver to tighten the screws. Using the supplied 10 ft. long tubing, connect the remote pickup tube to the aspi-
ration box assembly, cutting the tubing to fit.
432 1
3M
E-BUS CONNECTOR
FEMALE END
SENSOR
HOUSING
HINGED
COVER
BRASS BARB
FITTINGS FOR
0.170 I.D. TUBING
BRASS BARB
FITTINGS FOR
0.170 I.D. TUBING
EBC-10F
"WATTMASTER EBUS" "WATTMA STER EBUS"
EBC-10F
432 1
3M
432 1
3M
120.00” APPROX.
120.00” APPROX.
E-BUS CONNECTOR EXTENSION CABLE WITH MALE ENDS (PROVIDED WITH SENSOR)
0.170 I.D. TUBING
(
PROVIDED WITH SENSOR
)
FIRE RATED
CO2 PICKUP TUBE (PROVIDED WITH SENSOR)
CO2 SENSOR, HOUSING AND CABLE ASSEMBLY
5.00"
3.31"
4.12"
2.55”
13.00"
APPROX.
8.25"
0.55”
4.06"
2.81”
OE256-07 E-BUS Digital
CO
2
Sensor – Duct Mounted
Technical Data OE256-07 Duct Mounted E-BUS CO
2
Sensor
Input Power 12-34 VDC Power Consumption 30 mW Maximum Average
1.25 W Peak Power
Operating Temperature
14 to 122F
Operating Humidity 5-95% RH Non-Condensing
Sample Method Flow-Through
50-100 ml/min
Measurement Range 0 to 2000 ppm
Sensitivity
<20 ppm
Resolution
1 ppm
Accuracy
50 ppm @ 1000 ppm
or 2% measured value
Communications E-BUS
One Year Warranty WattMaster reserves the right to change specifications without notice