EasyManua.ls Logo

Wayne Helix 4000 - Page 91

Wayne Helix 4000
156 pages
Print Icon
To Next Page IconTo Next Page
To Next Page IconTo Next Page
To Previous Page IconTo Previous Page
To Previous Page IconTo Previous Page
Loading...
Appendix A Installation Drawings
WU017834 Rev. 05 July 2023 Wayne Fueling Systems | Dover Fueling Solutions 91
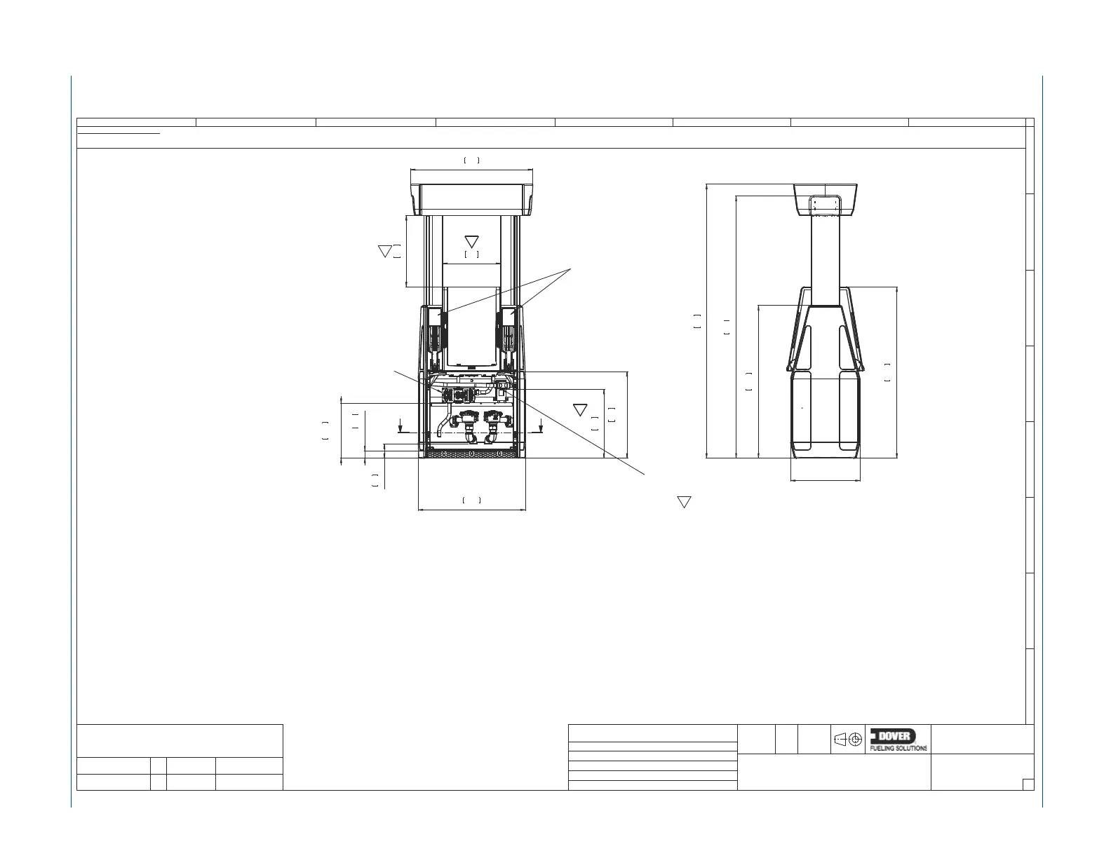
WU011861 - Installation Drawing, Helix 4000, Suction, Sheet 1
9131
39.15
0841
62.85
3622
1.98
2.39
6632
006
8.91
205
6.374
XOB NOITCNUJ OT
56.81
56
65.2
7.121
8.4
4.32
1.495
2.42
7.516
5.92
947
ROOD DYH
629
64.63
6501
6.14
2
2
XOB NOITCNUJ
NOITISOP ELZZON
RV DECNALAB
LANOITPO ,NRUTER
POT DNA MOTTOB
YLNO
AA
2
2
6.10noisiveR 542000BW :FER MROF WS
,ATAD LACINHCET ,SGNIWARD EHT
LAITNEDIFNOC REHTO RO/DNA STERCES EDART ESIRPMOC TNEMUCOD SIHT NI HTRO
F TES NOITAMROFNI REHTO LLADNA
EB YAM DNA )S(ETAILIFFA STI RO/DNA .DTL KU SNOITULOS GNILEUF REVOD FO
YTREPORP EHT SI TAHT NOITAMROFNI
SI NOITAMROFNI LAITNEDIFNOC HCUS FO ESU RO/DNA OT SSECCA .NOITCETORP
REHTO RO THGIRYPOC OT TCEJBUS
SI TNEIPICER ON DNA ,DEDIVORP SAW RO SI TI HCIHW ROF )S(ESOPRUP EHT OT
DETIMIL DNA DELLORTNOC YLTCIRTS
TES YLSSERPXE SA TPECXE ,NOITAMROFNI HCUS TIMSNARTRO ESOLCSID ESIWRE
HTO RO ,YPOC ,ESU OT DETTIMREP
NO RO ,YB GNITIRW NI DEZIROHTUA ESIWREHTO SA RO ,)S(TNEMEERGA ERUSOLCS
ID-NON ELBACILPPA EHTNI HTROF
.DEVRESER STHGIRLLA .)S(ETAILIFFA STI RO/DNA .DTL KU SNOITULOS GNILEUF
REVOD ,FO FLAHEB
1
1A
5
YB DECALPER
ECNARELOT LARENEG
TNEMTAERT ECAFRUS
HSINIF ECAFRUS
SSENKCIHT
LAIRETAM
.ON NCEETAD
VER
YB DEVORPPA
YB NWARD
A EDIS
A EDIS
)XILEH WORRAN( SLEDOM XILEH0004
DNA RRUBED
KAERB
PRAHS
SEGDE
gniwarD detaleR
FO TEEHS
mm 09 SI SIHT ROF EZIS RENNAPS EHT DNA mN 021 FO EUQROT A HTIW DENETHGIT EB DLUOHS GNILPUOC EHT
DEVOME
R .8
SETON DNA ELTIT MORF 0002 EVOMER ;SETON DDA ;ECNALAV DNA DAEH NEEWTEB DNA SNMULOC NEEWTEB SNOISNEMID DDA ;NRUTER ROPAV DECNALAB FO NOITACOL DDA ;YTIRALC ROF STEEHS OWT DEDDA
DEDDA XOB POT ROF SNOISNEMID
HTIW TEEHS WEN
mm NI ERA SNOISNEMID ,ESIWREHTO DETON SSELNU
DEIFICEPS ESIWREHTO SSELNU :SETON
ELBACILPPA LLA OT MROFNOC TSUM SNOITALLATSNI LACIRTCELEDNA GNIPIP LL
A .1
;EDOC SDIUQIL ELBITSUBMOC & ELBAMMALF ,03APFN GNIDULCNI SNOITALUGER
;EDOC NOITATS ECIVRES
ENIRAM & EVITOMOTUA ,A03APFN
RESNEPSID EHT "NIAHC YSIAD " TON OD .EDOC LACIRTCELE LANOITAN
,07APFN
.TNEMPIUQE REHTO YNA OT TIUCRICREWOP
.SPART DIUQILRO RIA DOIVA OT SDRAWPU EPO
LS DLUOHS RESNEPSID OT KNAT MORF GNIPIP .2
.TNEMEVOM DNUORG ROF WOLLA OT RESNEPSID TA STNIOJ
LASREVINU ESU .3
.NWOHS SNOITACOL TA TLOB ROHCNA EHT GNISU DNALSI EHTOT RESNEPSIDEHT TNUOM YL
MRIF .4
DETATS STNEMERIUQERFO SELPMAXE ERASECIVED YAWAKAERB DNA SEVLAV FFOTUHS YCNEGREME .5
REHTO YNA
SA LLEW SA ,ESEHT .EDOC NOITATS ECIVRES ENIRAM & EVITOMOTUA A03APFN EHT NI
EHT REP DENIATNI
AM DNA DELLATSNI EB TSUM ,A03 & 03APFN YB DERIUQER SECIVED YTEFAS
.SNOITCURTSNI S'RERUTCAFUNA
M
HTIW YLNO MOCRETNI DEREWOP 2 SSALC DETSIL A OT TIUCRIC MOCRETNI LANOITPO TCENNOC .6
SERIW
.ERIW DETSIL LU TNATSISER LIO & SAG V 006,C EERGED 09 TSAEL TA ,MUMINIM EGUAG 81
.TIUDNOC CIL
LATEM DETSIL DETACIDED ETARAPES NI NUR EB TSUM REWOP MOCRETNIOT KCAB
.7
.ADN OT TCEJBUS ,NOITAMROFNI LAITNEDIFNOC SNOITULOS GNILEUF REVOD
168110UW
EGNAHC FO NOITPIRCSED
12345678
H
G
F
E
D
C
B
A
NOITCUS ,LU ,0005 DNA 0004 XILEH
NOITCURTSNI NOITALLATSNI
8.201000-777910UW
nesbokaJ ynneJ
ELTIT
12
.ON GNIWARD
TON OD
ELACS
GNIWARD
ELACS
01:1

Table of Contents

Related product manuals