EasyManua.ls Logo

Webasto Ford Focus - Preparing Electrical System

Webasto Ford Focus
31 pages
Print Icon
To Next Page IconTo Next Page
To Next Page IconTo Next Page
To Previous Page IconTo Previous Page
To Previous Page IconTo Previous Page
Loading...
6
Ford Focus / Focus C-MAX / Focus CC
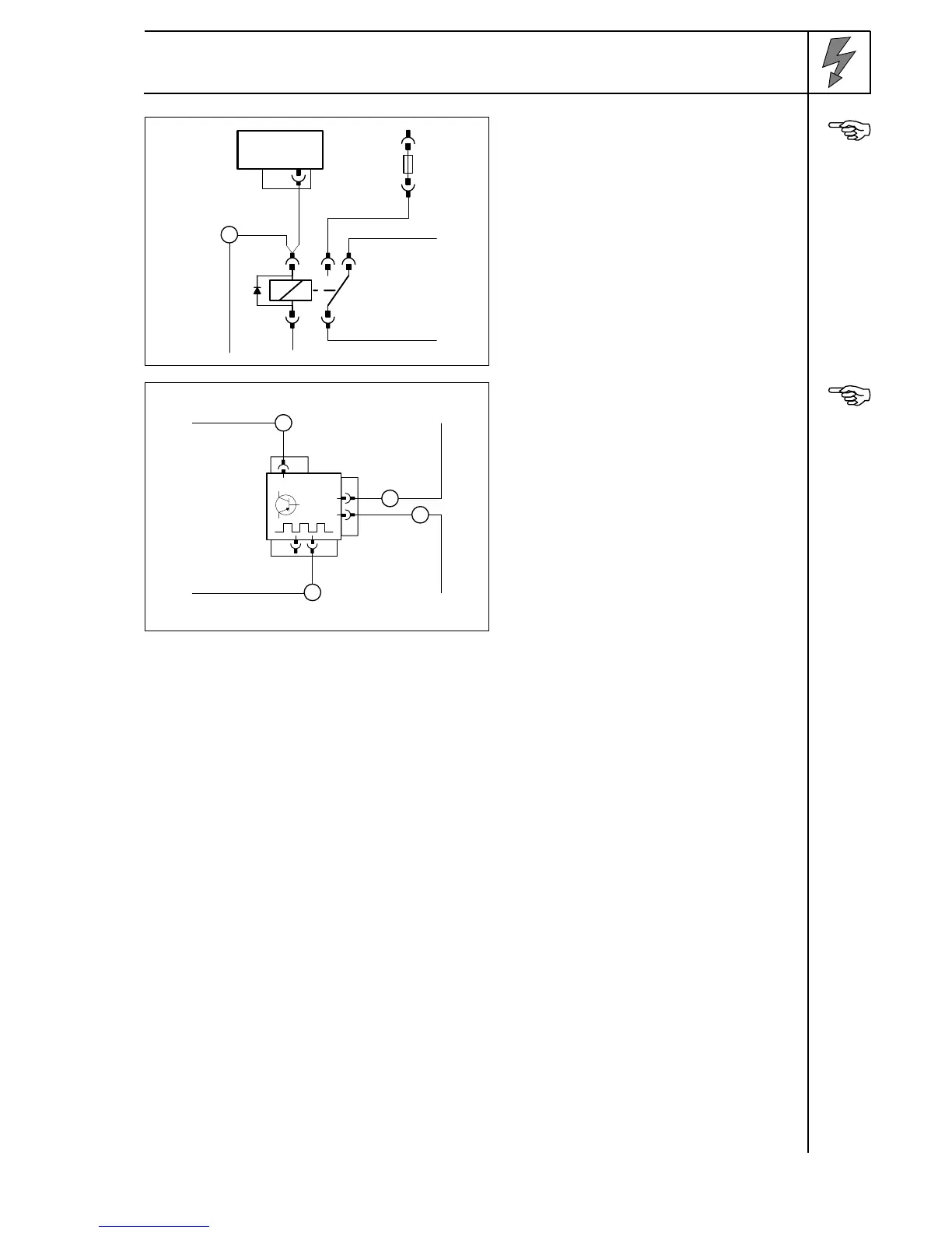
Preparing electrical system
Only with automatic air-conditioning
Connect additional green/white (gn/ws)
wire 5 to K3/86 and pull into protective
sleeving.
Wiring
diagram
for
additional
wire
Connect lines provided to IPCU as shown in
wiring diagram.
Connect 6 mm dia. cable lug to end of brown
(br) wire from IPCU/85 3.
Premount-
ing IPCU
connec-
tion
F3
rt
sw
rt/ws
gn/ws
gn/ws
br
K3
87a8786
85 30
5
4
Heater
X1
br
0,75mm²
sw
0,75mm²
rt
0,75mm²
86 85
A
E
15
IPCU
3
1
2
rt
0,75mm²
4

Related product manuals