EasyManua.ls Logo

Weil-McLain PLUS LINE PLUS-E017-A/1206 - B3. Field Wiring - Gas-Fired Boilers Only; B3. Field Wiring; Installation Must Comply with; Line Voltage Connections

Weil-McLain PLUS LINE PLUS-E017-A/1206
68 pages
Print Icon
To Next Page IconTo Next Page
To Next Page IconTo Next Page
To Previous Page IconTo Previous Page
To Previous Page IconTo Previous Page
Loading...
30
Part Number PLUS-E017-A/1206
PLUS LINE
Indirect-Fired Water Heaters – Series 3
ELECTRICAL SHOCK HAZARD
For your safety, turn off electrical
power supply at service entrance panel
before making any electrical connections
to avoid possible electric shock hazard.
Failure to do so can cause severe personal
injury or death.
Wiring must be N.E.C. Class 1.
If original wiring as supplied with boiler
must be replaced, use only type 105 °C
wire or equivalent.
Boiler must be electrically grounded as
required by National Electrical Code
ANSI/NFPA 70 – latest edition.
Installation must comply with:
1. National Electrical Code and any other national,
state, provincial or local codes or regulations.
2. In Canada, CSA C22.1 Canadian Electrical Code
Part 1, and any local codes.
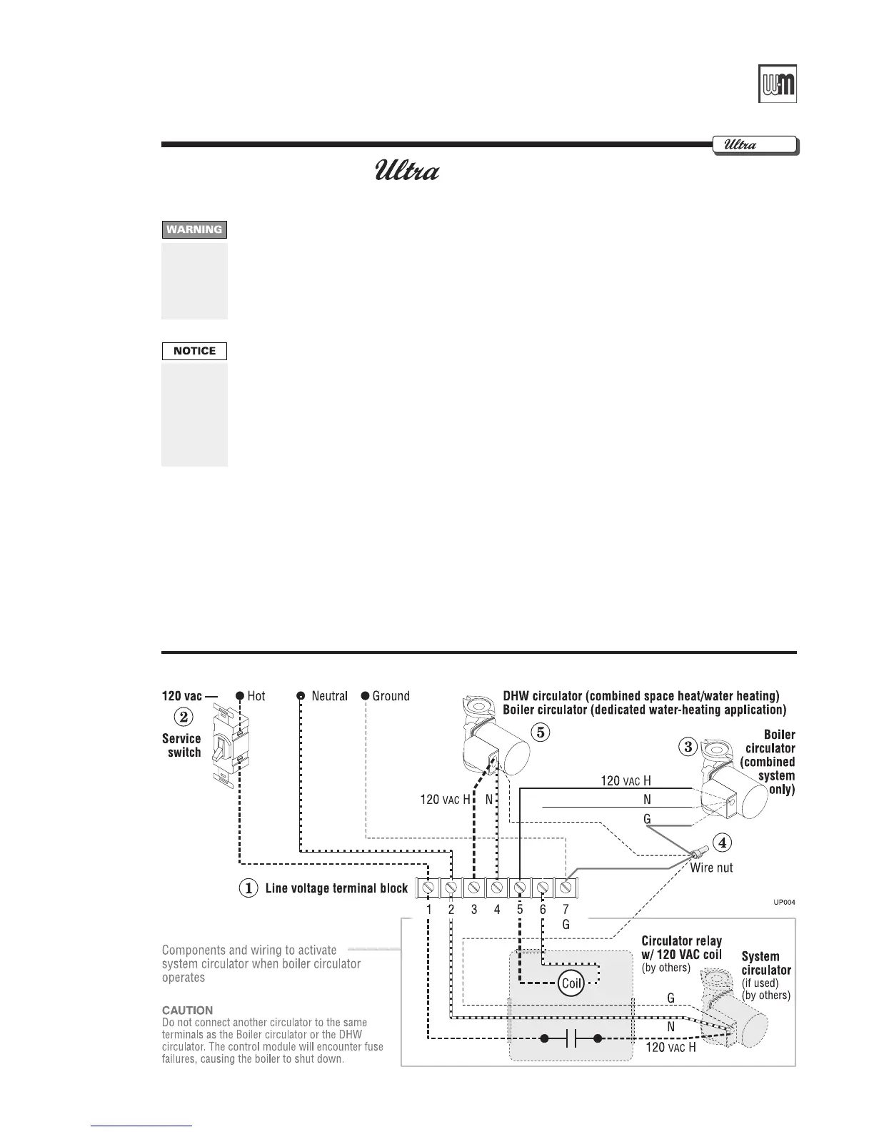
Line voltage connections
1. Connect 120 VAC power wiring to line voltage
terminal strip in left compartment of electrical
entrance, as shown in Figure 17, item 1.
2. Provide and install a fused disconnect or service
switch (15 amp. recommended) as required by the
code. (See Figure 17, item 2)
Wiring boiler circulator
1. The Taco 0011 circulator supplied with the boiler is
wired one of two locations, depending on whether
system is combined space heating/water heating or
dedicated water-heating only. Boiler circulator is
shipped loose. Wire Boiler circulator to terminals
(refer to Figure 17):
a. Combined system: terminals 5, 6, and 7 (installed as
Figure 17, item 3).
b. Dedicated system: terminals 3, 4, and ground wire nut
(installed as Figure 17, item 5).
Wiring water heater circulator
1. For combined systems, connect water heater circu-
lator to line voltage terminal strip terminals 3 and
4 and ground wire nut. See Figure 17.
Figure 17 Line voltage field wiring connections (service switch provided by installer)
Field wiring — Gas boilers onlyB3
Gas

Table of Contents

Related product manuals