EasyManua.ls Logo

Weil-McLain PLUS LINE PLUS-E017-A/1206 - Other Options for for Zoning with Pumps; Using Priority Zone Pump

Weil-McLain PLUS LINE PLUS-E017-A/1206
68 pages
Print Icon
To Next Page IconTo Next Page
To Next Page IconTo Next Page
To Previous Page IconTo Previous Page
To Previous Page IconTo Previous Page
Loading...
Part Number PLUS-E017-A/1206
49
Manual Installation Start-Up Usage Maintenance Parts
1. These drawings are conceptual only. They show representative piping components and
layout. Weil-McLain does not represent that the drawings meet any particular mechanical
or building codes. The installer is responsible for inclusion of all required safety devices, or
other miscellaneous piping hardware not shown on drawings. The installer is responsible
for proper sizing/selection of all hardware shown on this diagram.
2. Follow component manufacturer’s instructions for installation of all items shown.
3. See Weil-McLain installation instructions for specific details on installing the boiler.
Notes
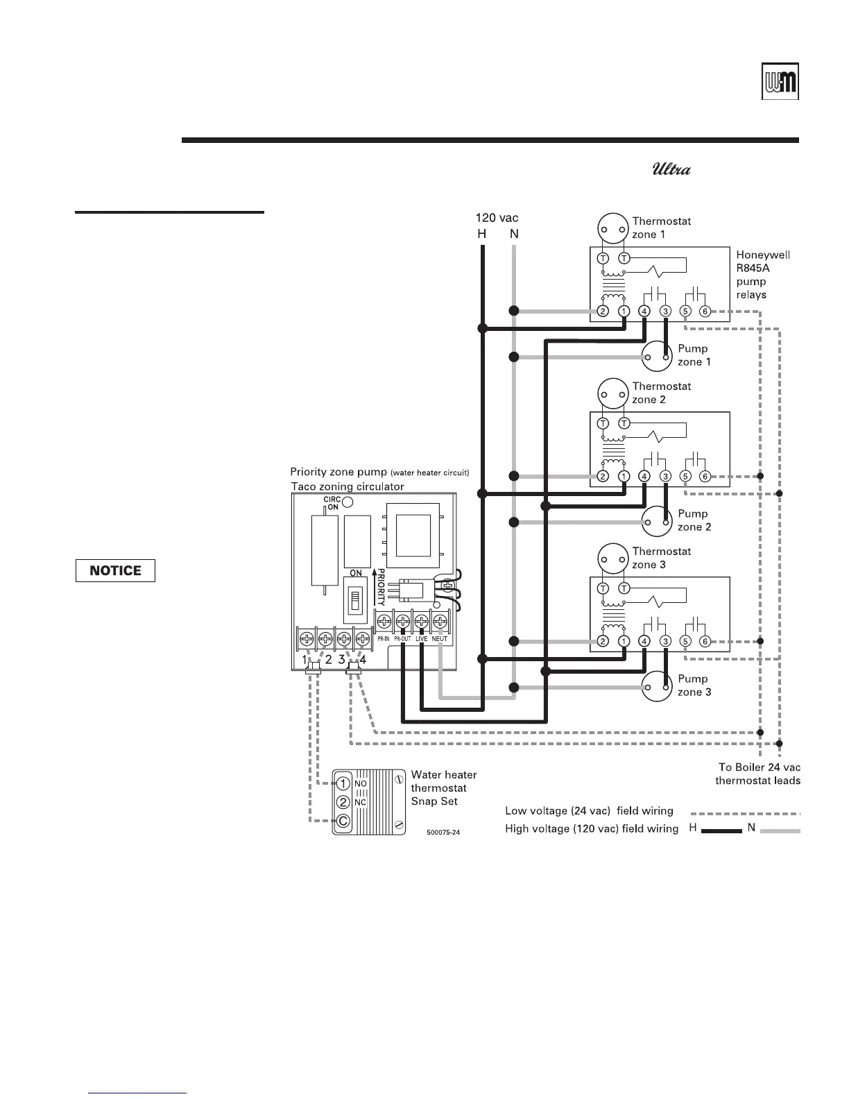
Figure 31
Typical wiring :
Zoning with pumps
Using priority zone pump
Also refer to Weil-McLain
Boiler Zone Wiring Guide for
further details.
Refer to Wiring requirements on
page 47.
System piping
Apply this wiring to systems
in:
Figure 20, page 36
Figure 21, page 37
Primary/secondary piping sys-
tems
Boiler loop pump (for primary/
secondary piping systems, as in Fig
-
ure 21, page 37) should be powered
by the boiler control or transformer/
relay for packaged residential boilers.
Provide a pump relay for this pump
when pump relay is not provided
with boiler.
Pump zones
Maximum of 4 total pump zones
when wiring one zone for priority.
D Boiler-side wiring & controls (except Gas) continued

Table of Contents

Related product manuals