EasyManua.ls Logo

Whirlpool 465 - Oven Door Lock System Current Flow; The Oven Temperature Sensor

Whirlpool 465
32 pages
Print Icon
To Next Page IconTo Next Page
To Next Page IconTo Next Page
To Previous Page IconTo Previous Page
To Previous Page IconTo Previous Page
Loading...
- 22 -
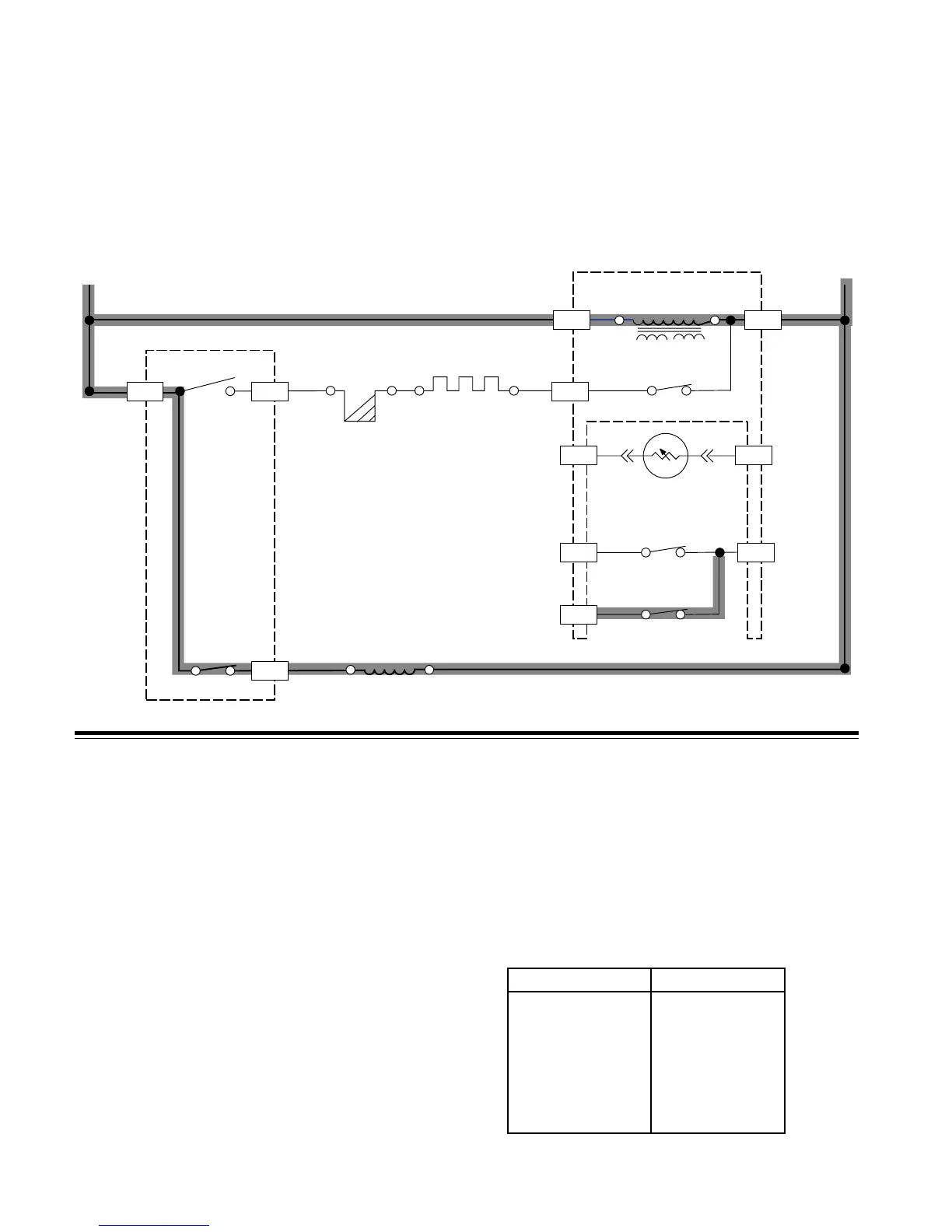
OVEN DOOR LOCK SYSTEM
CURRENT FLOW
Voltage is supplied to the control transformer whenever the range is plugged in. Current flows from
L1, through the transformer, to the neutral side of the line. When voltage is supplied to the EOCs
Latch Solenoid Relay, current flows through the Latch Solenoid, to the neutral side of the line.
L1
N
W
BK
BK
BU
BR
BU GY
GYY
W
W
VV
OVEN CONTROL
OVEN CONTROL
TRANSFORMER
SENSOR
BAKE RELAY
BAKE VALVE
BAKE IGNITOR
BROIL RELAY
LATCH RELAY
P3-4
P4
P3-1
P1-6
(N.O.)
DOOR
SWITCH
DOOR LATCH
SWITCH
LATCH
SOLENOID
P1-5P1-1
P1-3
P1-7
* PULSE 1 SECOND
P5 P2-1
P2-4
THE OVEN TEMPERATURE SENSOR
The oven temperature sensor is a “Resistance Temperature Detector” (RTD), and is composed
of a stainless steel tube with a thin film of platinum at the end. It is located at the upper left rear corner
of the oven cavity. The RTD is a nonadjustable assembly, but may be checked at room
temperature, or at 350˚F. A sensor resistance of less than 550 ohms is regarded as a shorted
sensor, and a resistance greater than 3000 ohms is regarded as an open sensor. When the oven
control senses a resistance of less than 550 ohms, and greater than 3000 ohms, the bake and broil
functions will be turned off.
To test the oven temperature sensor, perform the
following steps:
1. Use an ohmmeter and set the range switch to
R x 10.
2. With no power applied, touch the leads of the
ohmmeter to the connector pins of the sensor
(you do not have to separate the connectors).
Depending upon the oven temperature, you
should obtain the corresponding reading
shown in the chart:
Temperature (˚F) Resistance ()
32 ± 1.9 1000 ± 4.0
75 ± 2.5 1091 ± 5.3
250 ± 4.4 1453 ± 8.9
350 ± 5.4 1654 ± 10.8
450 ± 6.9 1853 ± 13.5
550 ± 8.2 2047 ± 15.8
650 ± 8.6 2237 ± 18.5
900 ± 13.6 2697 ± 24.4

Related product manuals