EasyManua.ls Logo

Whirlpool CHW9150 - Wiring Diagram and Grounding System; Washer Wiring Diagram Overview; Grounding System Explanation

Whirlpool CHW9150
35 pages
Print Icon
To Next Page IconTo Next Page
To Next Page IconTo Next Page
To Previous Page IconTo Previous Page
To Previous Page IconTo Previous Page
Loading...
14
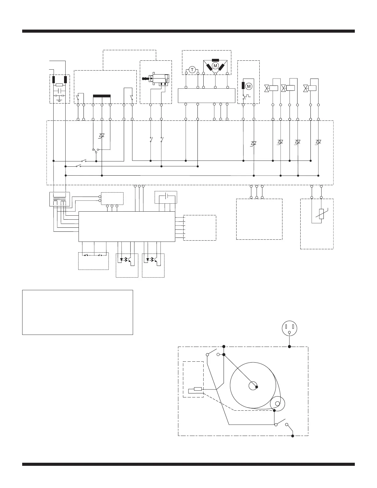
FOR SERVICE TECHNICIAN ONLY - DO NOT REMOVE OR DESTROY
MCU
Hub
CABINET
S1
POWERCORD
S2
S1=GND SWITCH FRONT
S2=GND SWITCH REAR
MOTOR
BELT: HIGH
INSULATED
REAR
Arrière
Contacteur de la terre, avant
Contacteur de la terre, arrière
Cordon
d’alimentation
Module de
commande
du moteur
FRONT
Avant
Moteur
COURROIE:
forte isolation
Moyeu
Caisse
1MΩ
NC Switch: Opens when service panel is in place
NC Switch: Opens when rear panel is in place
Contacteur NF : Ouvert quand le panneau de service est en place
Contacteur NF : Ouvert quand le panneau arrière
est en place
WIRING DIAGRAM
GROUNDING SYSTEM
Grounding switches are in place to ground the motor circuit while a service panel is removed from the washer.
Operating the washer with a service panel removed can cause a communication error failure code.
Definitions/Définitions
IF = Input Filter/Filtre de données
DCS = Door Switch/Contacteur de porte
DLS = Door Lock Switch/Contacteur de verrou de porte
DP = Drain Pump/Pompe de vidange
VC = Valve, Cold Water/Électrovanne d’eau froide
VH = Valve, Hot Water/Électrovanne d’eau chaude
N1
L2
K1
K2
L1
N
L
CENTRAL CONTROL
UNIT (CCU)
DR1
IF
Lock
DOOR LOCK/SWITCH
DLS
Unlock
DS
DRIVEMOTOR
MOTOR CONTROL UNIT (MCU)
DRAIN PUMP
COLD INLET
VALVE #3
12 12312
IF2
DCS3
DL3
DLS2
12
MS2
12
MI3
123
DP2
12
VCH7
13 57
VSF2
1
L2 N1
Moteur d’entraînement
Contacteur/verrou de porte
Verrouillage
Déverrouillage
Module de commande du moteur
Module de commande central
Pompe
de vidange
Électrovanne
d’entrée
froide
3
WAX MOTOR
RP2
21
HR2HR1
PRESSURE TRANSDUCER
TEMPERATURE
SENSOR
PS8
SET2
12
Transducteur de pression
Capteur de
température
3
2
1
5
3
6
1
2
3
AA6
AA1
Service
Contacteur
du service
Connecteur du lecteur de carte
Contacteur
du coffre
Switch
Coin Vault
Switch
1
4
2
3
AA4
1
4
2
3
AA5
1
23
1
2
3
4
5
6
AVAIL 2
AVAIL 1
ENABLE 1
ENABLE 2
DEBIT POWER
DEBIT GROUND
Card Reader Connector
12
3
4
(+)
(-)
NC NC
USER INTERFACE
Interface utilisateur
Battery (Optional)
Pile (en option)
EE1
Moteur de l’actionneur
Capteur
de la pièce 1
Coin 1 Sensor
Capteur
de la pièce 2
Coin 2 Sensor
All models include connector AA1, AA4, AA5, and card reader connector
Tous les modèles comprisent connecteur AA1, AA4, AA5, et connecteur du lecteur de carte
AA3
WB3
COLD INLET
VALVE #2
Électrovanne
d’entrée
froide
2
HOT INLET
VALVE #1
Électrovanne
d’entrée
chaude
1
VC3VC2
VH1
1
2
3
WC3
4
5
Connect 360
Connect 360 applies to Coin Vault only
Connect 360 s’applique au coffre uniquement
Transformer
Transformateur
FAC3
478
123

Related product manuals