EasyManua.ls Logo

WinGD WARTSILA RT-flex58T-E - Page 91

WinGD WARTSILA RT-flex58T-E
504 pages
Print Icon
To Next Page IconTo Next Page
To Next Page IconTo Next Page
To Previous Page IconTo Previous Page
To Previous Page IconTo Previous Page
Loading...
Maintenance
11321/A1
RT-flex58T-E
Winterthur Gas & Diesel Ltd.
3/ 3
B
C
I
I
I - I
L
1
4
5
4
6
RS
KO
011.310/03
9
3
7
GAP 0 mm
94942
8
94935
94934
94932
94114
98.7663
2
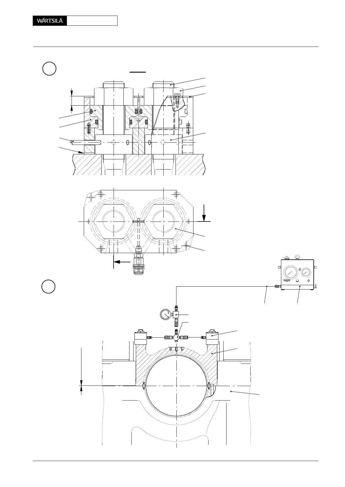
Main Bearing: Loosening and Tensioning of Elastic Studs
2013

Table of Contents

Related product manuals