EasyManua.ls Logo

Wolf Induction Cooktop - 36 Induction Cooktop Wiring Diagram

Wolf Induction Cooktop
62 pages
Print Icon
To Next Page IconTo Next Page
To Next Page IconTo Next Page
To Previous Page IconTo Previous Page
To Previous Page IconTo Previous Page
Loading...
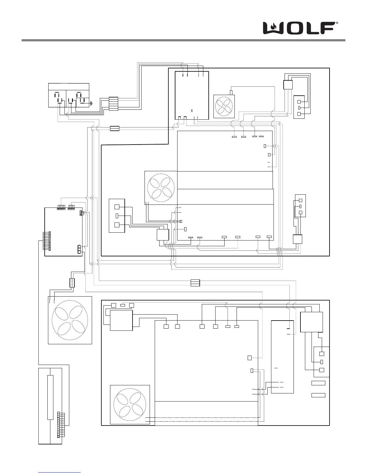
Induction Cooktop
Wiring Diagrams
7-4
Induction Plate
Terminal Box
L1
L2
Filter Board
Induction Plate
Generator Board
Generator Board
Control Board
J4
J6
J3J2J1
Generator Board
Induction Plate
Plug into each other
Keyboard
Display Board
J1
Filter Board
L1
L2
36” Induction Cooktop Wiring Diagram

Related product manuals