EasyManua.ls Logo

Wolf Induction Cooktop - 30 Induction Cooktop Wiring Diagram

Wolf Induction Cooktop
62 pages
Print Icon
To Next Page IconTo Next Page
To Next Page IconTo Next Page
To Previous Page IconTo Previous Page
To Previous Page IconTo Previous Page
Loading...
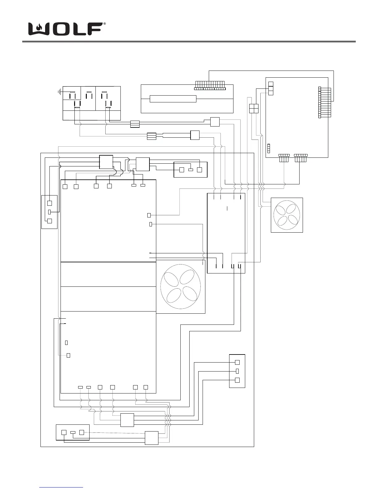
Induction Cooktop
Wiring Diagrams
7-3
Terminal
Box
L1
L2
J1
Plug into each other
J3 J2 J1
J4
J6
Control Board
Generator Board
Induction Plate
Generator Board
C3-5
C3-4
C3-3
C3-2
C3-1
Keyboard
Display Board
30” Induction Cooktop Wiring Diagram

Related product manuals