EasyManua.ls Logo

Xinje VB5-41P5 - Limits of Deviation; Close-Loop Preset Frequency; Zero-Frequency Hysteresis

Xinje VB5-41P5
107 pages
To Next Page IconTo Next Page
To Next Page IconTo Next Page
To Previous Page IconTo Previous Page
To Previous Page IconTo Previous Page
Loading...
V5 series inverter
81
Fig.
Fig.
Fig.
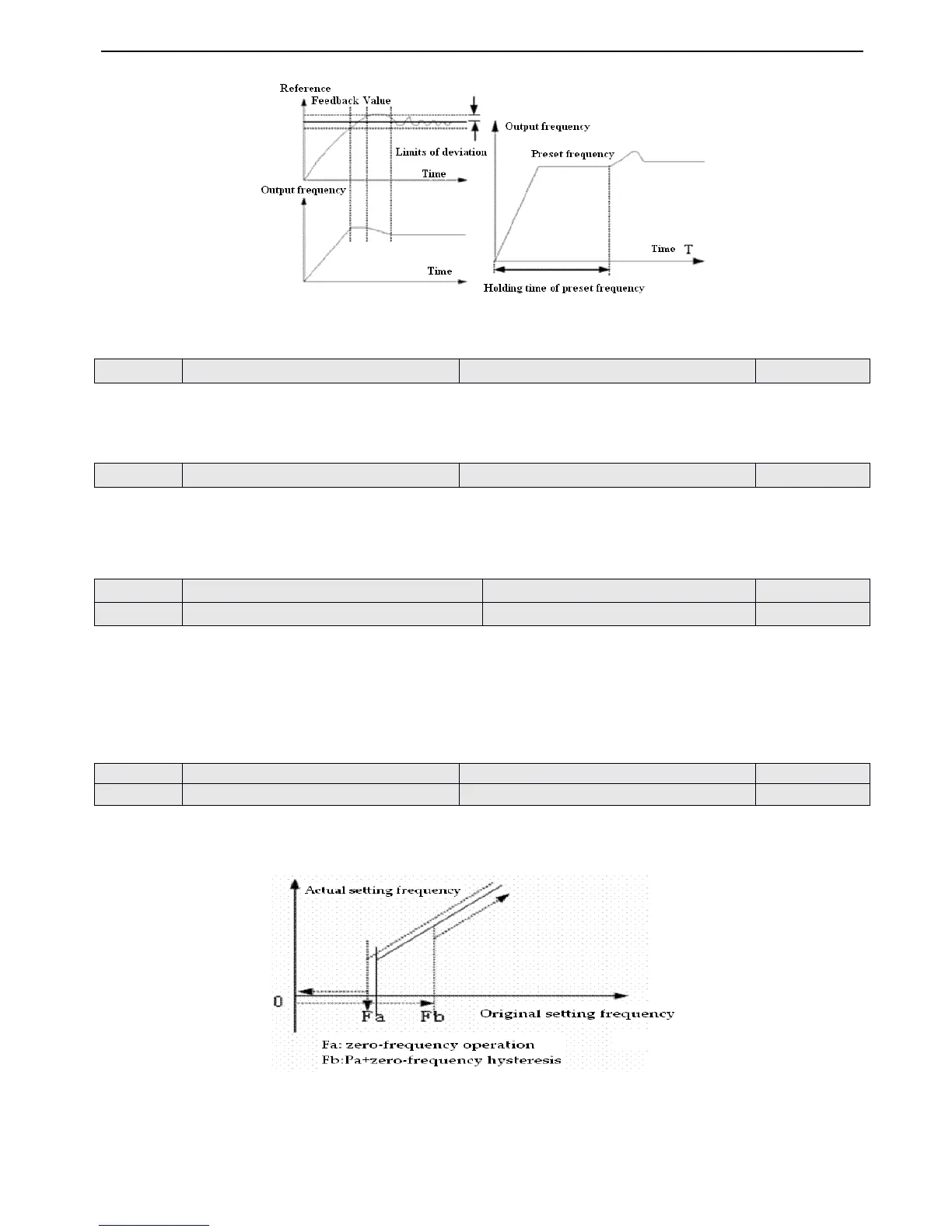
Fig. 4-37
4-37
4-37
4-37 Limits
Limits
Limits
Limits of
of
of
of deviation
deviation
deviation
deviation Fig.
Fig.
Fig.
Fig. 4-38
4-38
4-38
4-38 close-loop
close-loop
close-loop
close-loop preset
preset
preset
preset frequency
frequency
frequency
frequency
0:
0:
0:
0: Positive
Positive
Positive
Positive
.
.
.
. When the reference increases, it will be enabled when the motor speed increase.
1:
1:
1:
1:
Negative
Negative
Negative
Negative .
.
.
. When the reference increases, it will be enabled when the motor speed reduces
Note Define the relationship of reference and speed.
0 Stop integral adjustment selection when the frequency reaches upper limit or lower limit s
1 Continue the integral adjustment selection when the frequency reaches hig h limit or lower limit s
For the system need quick response, can cel the continuouse integral adjustment is recommended.
This function can make the close-loop adjustment enter stable stage quickly.
When
the
close-loop
starts,
the
f
requency will accelerate
to
the preset value set
by
P7.16
according
to Acc
time
and
the
inverter
will
running wit h
this freuquency
in
the
holding time
set
by
P7.17,
then running according
to
close-lood
character,
as
shown
in
Fig4-38.
Note
Note
Note
Note If the function of close-loop preset frequency is not needed, you can set the preset frequency and holding time as 0.
The two function parameter is used for setting PI threshold and hysteresis of zero-frequency operation
.
If you set the frequency as
0
Hz
,
PI threshold of zero-frequency operation will be disa b led.
Fig.
Fig.
Fig.
Fig. 4-39
4-39
4-39
4-39 zero-frequency
zero-frequency
zero-frequency
zero-frequency hysteresis
hysteresis
hysteresis
hysteresis
As shown in Fig. 4-39
Start process
P7.14
P7.14
P7.14
P7.14
Close
Close
Close
Close loop
loop
loop
loop adjustment
adjustment
adjustment
adjustment characteristic
characteristic
characteristic
characteristic
Range
Range
Range
Range 0
0
0
0 ,
,
,
, 1
1
1
1
0
0
0
0
P7.15
P7.15
P7.15
P7.15
Integral
Integral
Integral
Integral adjustment
adjustment
adjustment
adjustment selection
selection
selection
selection
Range
Range
Range
Range 0
0
0
0 ,
,
,
, 1
1
1
1
0
0
0
0
P7.16
P7.16
P7.16
P7.16
Close-loop
Close-loop
Close-loop
Close-loop preset
preset
preset
preset frequency
frequency
frequency
frequency
Range
Range
Range
Range 0
0
0
0 upper
upper
upper
upper limit
limit
limit
limit of
of
of
of frequency
frequency
frequency
frequency
0.00Hz
0.00Hz
0.00Hz
0.00Hz
P7.17
P7.17
P7.17
P7.17
Holding
Holding
Holding
Holding time
time
time
time of
of
of
of close-loop
close-loop
close-loop
close-loop preset
preset
preset
preset frequency
frequency
frequency
frequency
Range
Range
Range
Range 0.0
0.0
0.0
0.0 250.0S
250.0S
250.0S
250.0S
0.1S
0.1S
0.1S
0.1S
P7.18
P7.18
P7.18
P7.18
PI
PI
PI
PI Threshold
Threshold
Threshold
Threshold of
of
of
of zero-frequency
zero-frequency
zero-frequency
zero-frequency operation
operation
operation
operation
Range
Range
Range
Range 0.00
0.00
0.00
0.00 500.0Hz
500.0Hz
500.0Hz
500.0Hz
0.01Hz
0.01Hz
0.01Hz
0.01Hz
P7.19
P7.19
P7.19
P7.19
PI
PI
PI
PI hysteresis
hysteresis
hysteresis
hysteresis of
of
of
of zero-frequency
zero-frequency
zero-frequency
zero-frequency operation
operation
operation
operation
Range
Range
Range
Range 0.00
0.00
0.00
0.00 500.0Hz
500.0Hz
500.0Hz
500.0Hz
0.01Hz
0.01Hz
0.01Hz
0.01Hz

Table of Contents

Related product manuals