EasyManua.ls Logo

Yale CPE Series

Yale CPE Series
32 pages
To Next Page IconTo Next Page
To Next Page IconTo Next Page
To Previous Page IconTo Previous Page
To Previous Page IconTo Previous Page
Loading...
Yale Electric Chain Hoist CPE
Yale
electric
16
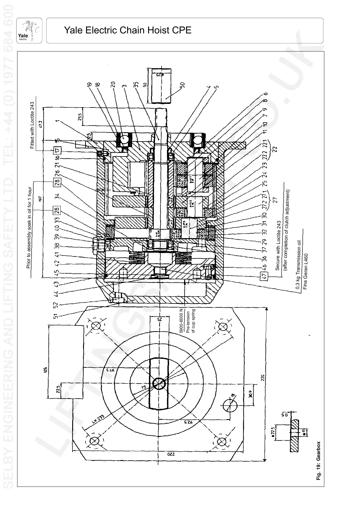
Fig. 19: Gearbox
Prior to assembly soak in oil for 1 hour
Fitted with Loctite 243
5900-6000 N
Pre-tension
of cup spring
Secure with Loctite 243
(after completion of clutch adjustment)
0,3 kg
Transmission oil
Fina Geran L460

Other manuals for Yale CPE Series

Related product manuals