EasyManua.ls Logo

Yanmar 3JH4BE - 9 Cooling Water System

Yanmar 3JH4BE
214 pages
Print Icon
To Next Page IconTo Next Page
To Next Page IconTo Next Page
To Previous Page IconTo Previous Page
To Previous Page IconTo Previous Page
Loading...
9. Cooling Water System
146
9. Cooling Water System
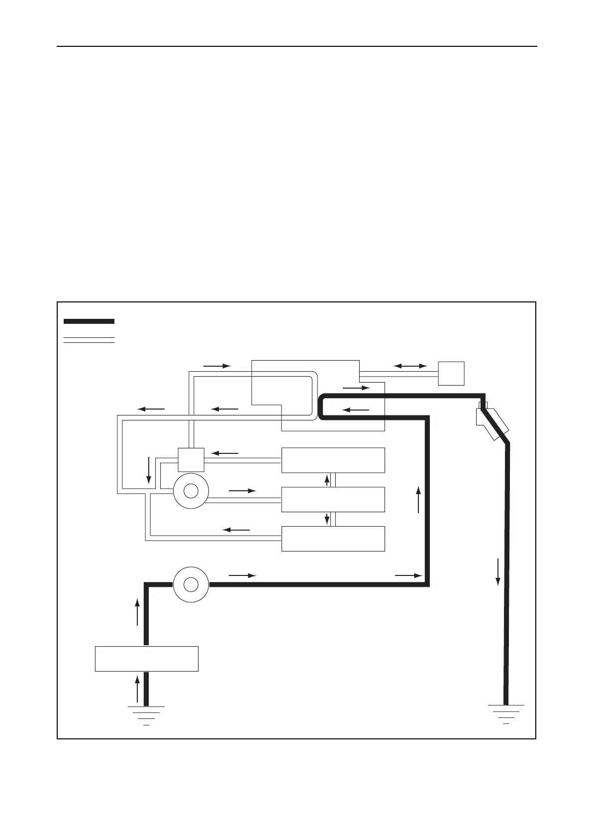
9.1 Cooling Water System
The cooling water system is of the indirect seawater cooled, fresh water circulation type. The cylinders,
cylinder heads and exhaust manifold are cooled with fresh water, and fresh water cooler (heat
exchanger) use seawater.
Seawater pumped in from the sea by the seawater pump goes to the heat exchanger, where it cools the
fresh water. Then it is sent to the mixing elbow and is discharged from the ship with the exhaust gas.
Fresh water is pumped by the fresh water to the cylinder jacket to cool the cylinders, and the cylinder
head. The fresh water pump body also serves as a discharge passageway (line) at the cylinder head
outlet. and is fitted with a thermostat.
The thermostat is closed when the fresh water temperature is low, immediately after the engine is started
and during low load operation, etc. Then the fresh water flows to the fresh water pump inlet, and is
circulated inside the engine without passing through the heat exchanger.
When the temperature of the fresh water rises, the thermostat opens, fresh water flows to the heat
exchanger, and it is then caoled by the seawater in the tubes as it flows through the cooling pine. The
temperature of it flows through the cooling pine. The temperature of the fresh water is thus kept within a
constant range by the thermostat.
P
P
Seawater circuit
Fresh water circuit
Thermostat
Seawater pump
Sea cock
Fresh water pump
Heat exchanger
Coolant recovery tank
Mixing
elbow
Cylinder head
Cylinder block
Lube oil cooler

Table of Contents

Related product manuals