EasyManua.ls Logo

YASKAWA GA50U4004ABA

YASKAWA GA50U4004ABA
48 pages
To Next Page IconTo Next Page
To Next Page IconTo Next Page
To Previous Page IconTo Previous Page
To Previous Page IconTo Previous Page
Loading...
6 Control Circuit Wiring
YASKAWA America, Inc. PL.GA500.01 YASKAWA AC Drive - V1000 to GA500 Transition Guide 27
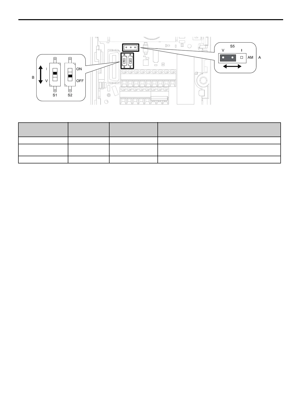
GA500 Switches and Jumpers
Figure 9
Figure 9 GA500 Switches and Jumpers
Table 13 GA500 Switch and Jumper Settings
Switch or Jumper GA500 Terminal Default Setting Value DIP Switch Setting Description
DIP SW S1 A2 I (current input) Sets the input method for terminal A2 (voltage or current).
DIP SW S2 - OFF
Enables and disables the MEMOBUS/Modbus communications
termination resistor.
Jumper S5 AM V (voltage output) Sets the output method for terminal AM (voltage or current).

Table of Contents

Related product manuals