EasyManua.ls Logo

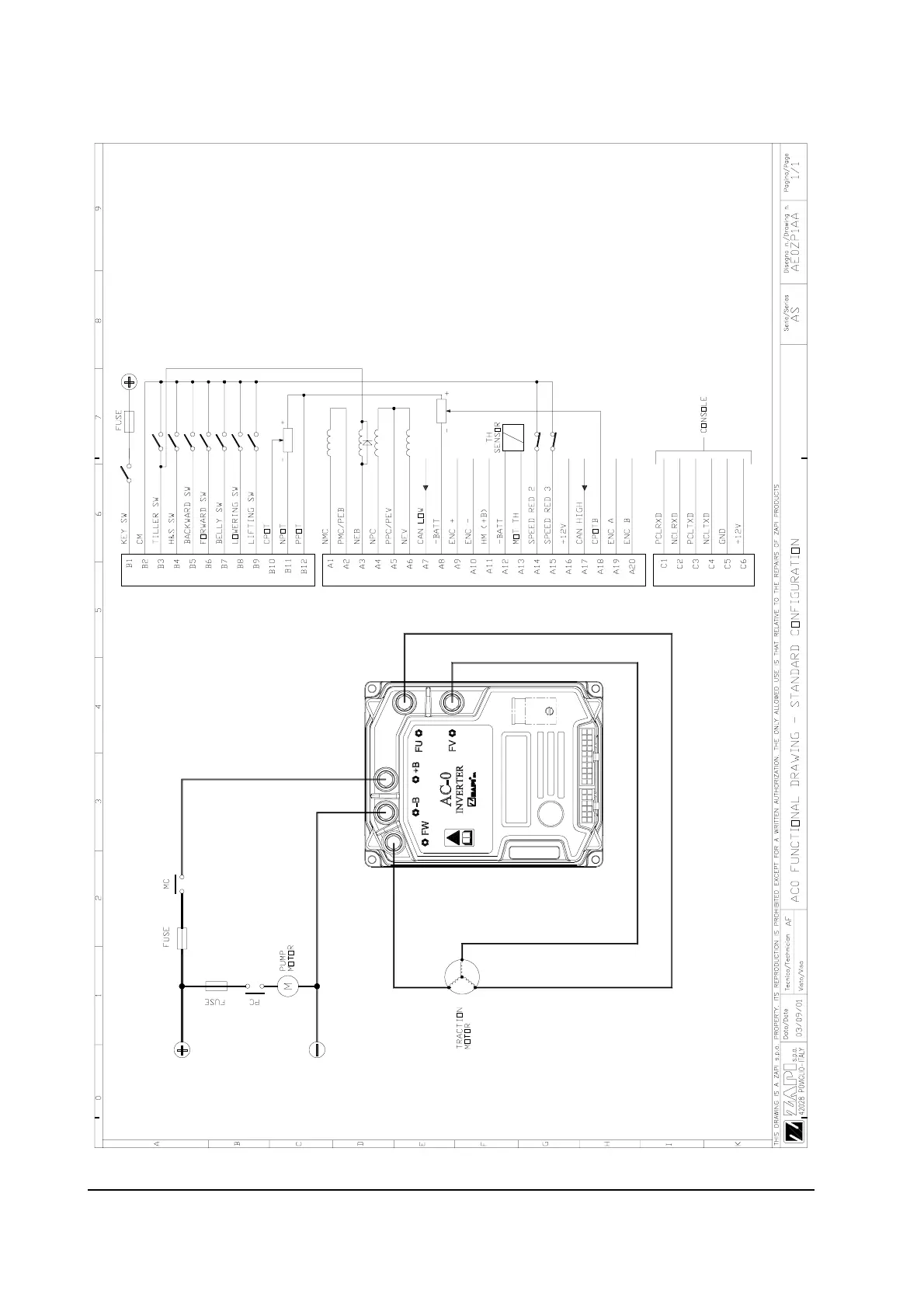
Zapi AC0 - Connection Drawing - Standard Version

Zapi AC0
62 pages
Print Icon
To Next Page IconTo Next Page
To Next Page IconTo Next Page
To Previous Page IconTo Previous Page
To Previous Page IconTo Previous Page
Loading...
Page 18
3.9 CONNECTION DRAWING - STANDARD VERSION

Table of Contents

Related product manuals