EasyManua.ls Logo

Zubler Z4 VARIOmatic - Connecting the AP601 Port Openers

Default Icon
28 pages
Print Icon
To Next Page IconTo Next Page
To Next Page IconTo Next Page
To Previous Page IconTo Previous Page
To Previous Page IconTo Previous Page
Loading...
11
12
2
11
16
75
3
9
62
60
20
B
10
1
1
27
28
A
76
9
8
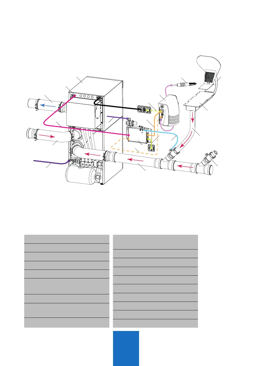
Fig. 11: Schematic layout of a
workstation with multistation suction
system Z4 VARIOmatic
1 Pipe system
2 Suction hose workstation
3 Port valve
8 Comp. air line port valve
9 Comp. air supply
10
Handpiece control unit
e.g. Zubler K50
11 Handpiece
12
Power cord handpiece
control unit (with 28 only!)
16 Exhaust hose Ø75mm
20
Z4 VARIOmatic Multi-
station suction unit
27 Connectors AP601
28 Start signal K50
60 Autom. port opener AP601
62 Mains cable AP601
75 Network cable
76
Power cord K50
A Suction funnel R2200
B Rectangular pipe R2000
1.4 Connecting the AP601 port openers

Related product manuals