EasyManua.ls Logo

ActronAir BMS MODBUS 485 - ICUNO-MOD Kit Components

ActronAir BMS MODBUS 485
24 pages
Print Icon
To Next Page IconTo Next Page
To Next Page IconTo Next Page
To Previous Page IconTo Previous Page
To Previous Page IconTo Previous Page
Loading...
Installation and Commissioning Guide
ICUNO-MOD
5
4
Installation and Commissioning Guide ICUNO-MOD
Doc. No. 9590-3013 Ver. 5 200722
ActronAir is constantly seeking ways to improve the design of its products, therefore specifications are subject to change without notice.
Copyright © 2019 Actron Engineering Pty. Ltd.
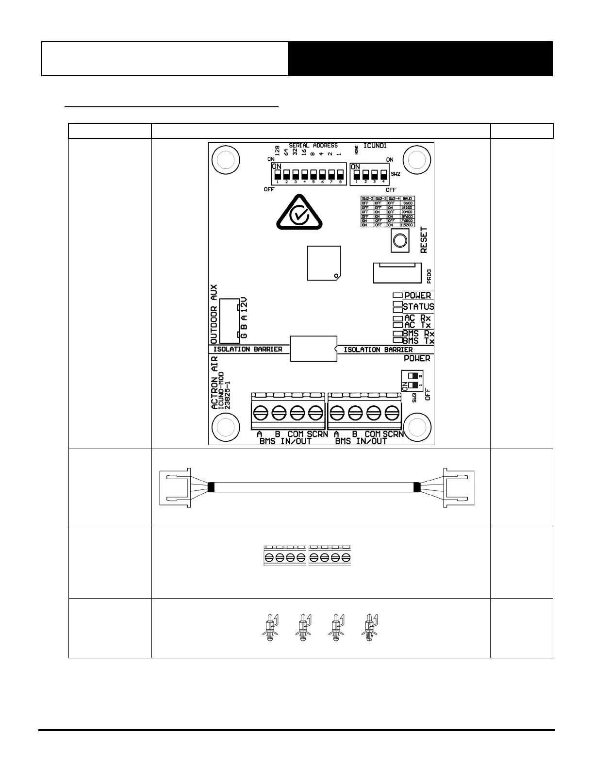
02. Parts Included In ICUNO-MOD
Items Images Quantity
ICUNO-MOD
Modbus 485 Card
1
DATA Cable
(P/N 26117-1)
1
BMS Connectors 2
PCB Mounts 4

Related product manuals