EasyManua.ls Logo

Allen-Bradley 1420-V2-ENT - Page 24

Allen-Bradley 1420-V2-ENT
90 pages
To Next Page IconTo Next Page
To Next Page IconTo Next Page
To Previous Page IconTo Previous Page
To Previous Page IconTo Previous Page
Loading...
24 Rockwell Automation Publication 1420-UM001E-EN-P - March 2016
Chapter 2 Installation and Wiring
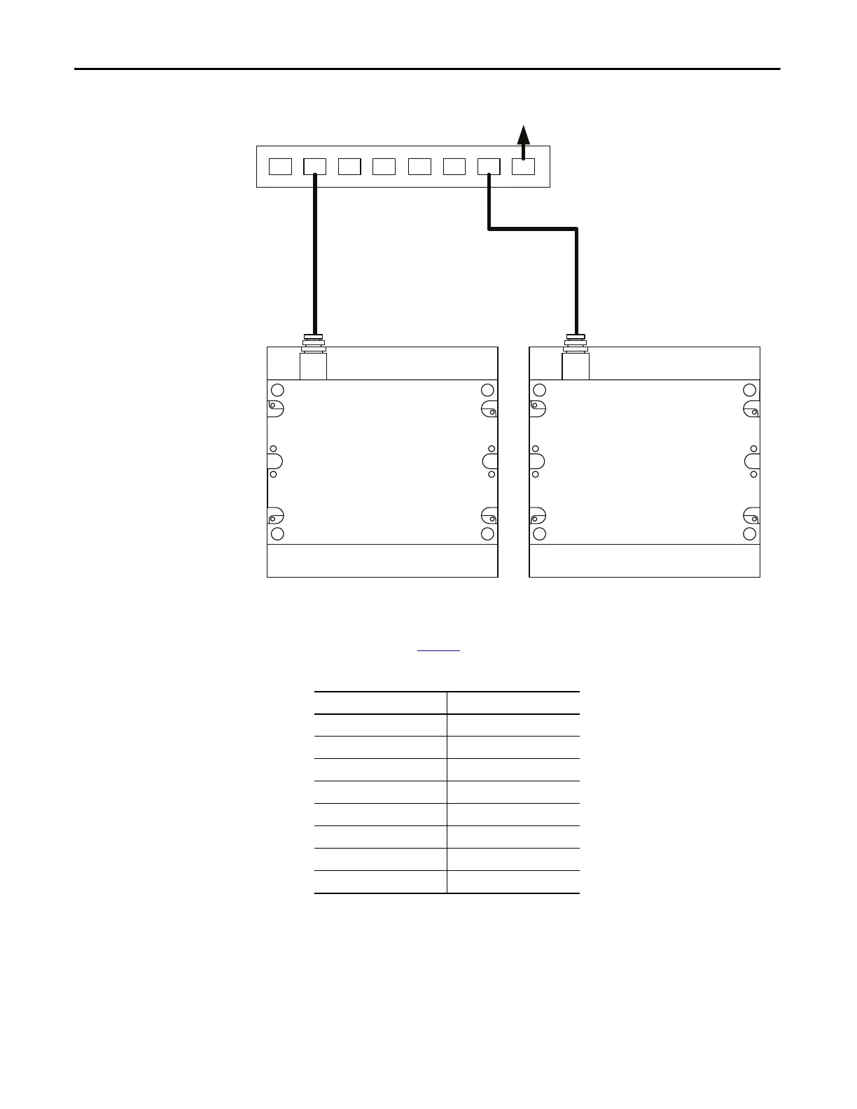
Figure 21 - Ethernet Communication (ENT option)
The PowerMonitor 500 unit connects to industry-standard Ethernet hubs and
switches by using standard CAT-5 UTP (unshielded twisted-pair) cables with
RJ45 connectors. Ta b le 5
shows the cable and connector pin assignments.
Ethernet Network Switch Uplink to LAN
PowerMonitor 500 PowerMonitor 500
Table 5 - Ethernet Network Connections
Terminal Signal
1TX+
2TX-
3RX+
4
5
6RX-
7
8

Related product manuals