EasyManua.ls Logo

Allen-Bradley PowerFlex 20-750-ENC-1 - Page 291

Allen-Bradley PowerFlex 20-750-ENC-1
302 pages
Print Icon
To Next Page IconTo Next Page
To Next Page IconTo Next Page
To Previous Page IconTo Previous Page
To Previous Page IconTo Previous Page
Loading...
Rockwell Automation Publication 750-IN001O-EN-P - October 2014 291
I/O Wiring Chapter 5
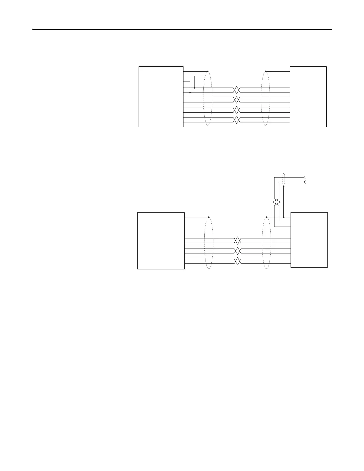
Figure 154 - Differential Dual Channel with Z Channel with 5V Internal Supply
Set Universal Feedback parameter P6 [FB0 Device Sel] or P36 [FB1 Device Sel]
to 12 “Inc A B Z.
Figure 155 - Differential Dual Channel with Z Channel with External Power Supply
Set Universal Feedback parameter P6 [FB0 Device Sel] or P36 [FB1 Device Sel]
to 12 “Inc A B Z.
Universal Feedback Option
Module TB1
Incremental
Encoder TB
Shield
Os
-Hf
+Hf
5c
+5
-A
A
B
-Z
Z
-B
DC Return
DC+ Input
/Enc A
Enc A
/Enc B
Enc B
/Enc Z
Enc Z
Universal Feedback Option
Module TB1
Incremental
Encoder TB
Shield
Os
-A
A
-B
-Z
Z
B
DC+ Input
DC Return
/Enc A
Enc A
/Enc B
Enc B
/Enc Z
Enc Z
Encoder
Power Supply
Shield
Common
+

Table of Contents

Related product manuals