EasyManua.ls Logo

Allen-Bradley PowerFlex 20-750-ENC-1 - Page 65

Allen-Bradley PowerFlex 20-750-ENC-1
302 pages
Print Icon
To Next Page IconTo Next Page
To Next Page IconTo Next Page
To Previous Page IconTo Previous Page
To Previous Page IconTo Previous Page
Loading...
Rockwell Automation Publication 750-IN001O-EN-P - October 2014 65
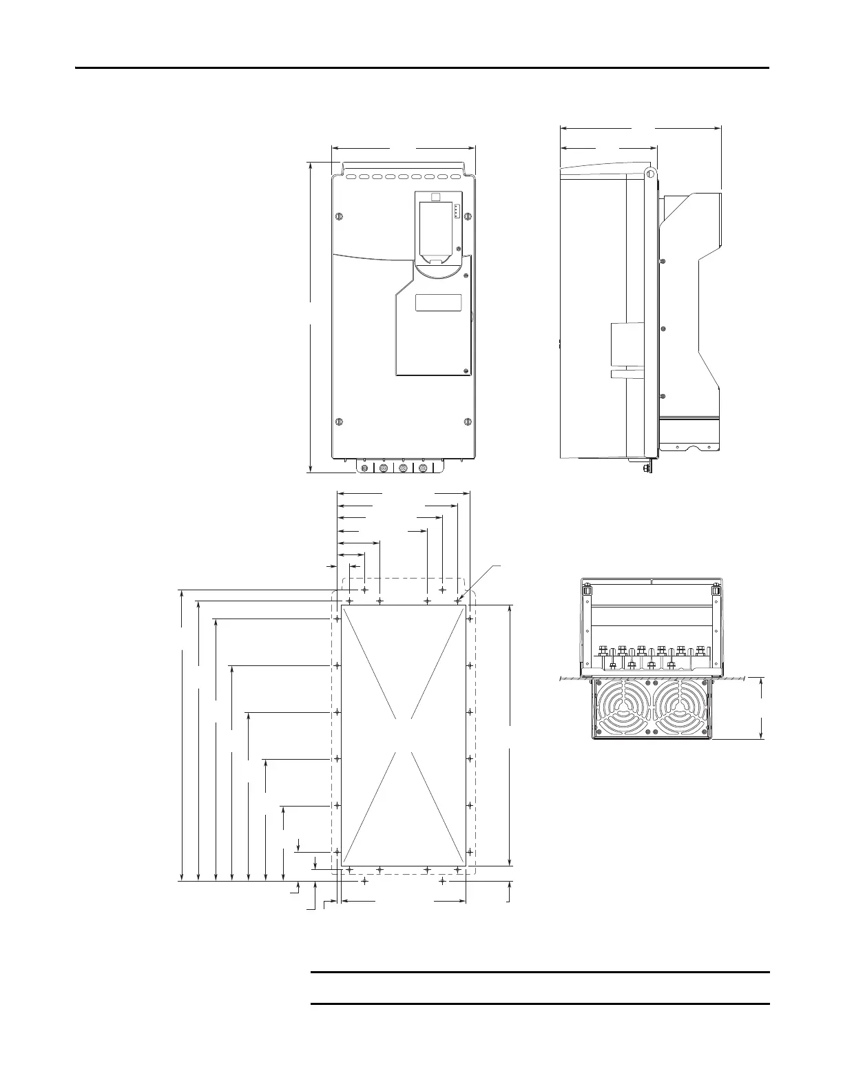
Lift and Mount the Drive Chapter 3
Figure 27 - Flange Mount, Frame 6
Dimensions are in millimeters and (inches).
208.4
(8.20)
346.4
(13.64)
308.0
(12.13)
665.5
(26.20)
162.0
(6.38)
24.0
(0.94)
262.0
(10.31)
362.0
(14.25)
462.0
(18.19)
562.0
(22.13)
600.0
(23.62)
624.0
(24.57)
26.0 (1.02)
91.0 (3.58)
193.0 (7.60)
258.0 (10.16)
225.5 (8.88)
284.0 (11.18)
24x: Ø6.4
(Ø0.25)
138.0
(5.43)
561.0 +2.0/-1.5
(22.09 +0.08/-0.06)
268.0 +2.0/-1.5
(10.60 +0.08/-0.06)
8.0
(0.30)
62.0
(2.44)
31.5
(1.24)
58.5 (2.30)
IMPORTANT
Must use Flange Adapter kit (20-750-FLNG4-F6) to meet enclosure rating.

Table of Contents

Related product manuals