EasyManua.ls Logo

Allen-Bradley SLC 500

Allen-Bradley SLC 500
70 pages
To Next Page IconTo Next Page
To Next Page IconTo Next Page
To Previous Page IconTo Previous Page
To Previous Page IconTo Previous Page
Loading...
5–1
1Using RS232-to-Ethernet

Channel-to-Channel Passthru
Publication
1747-10.4
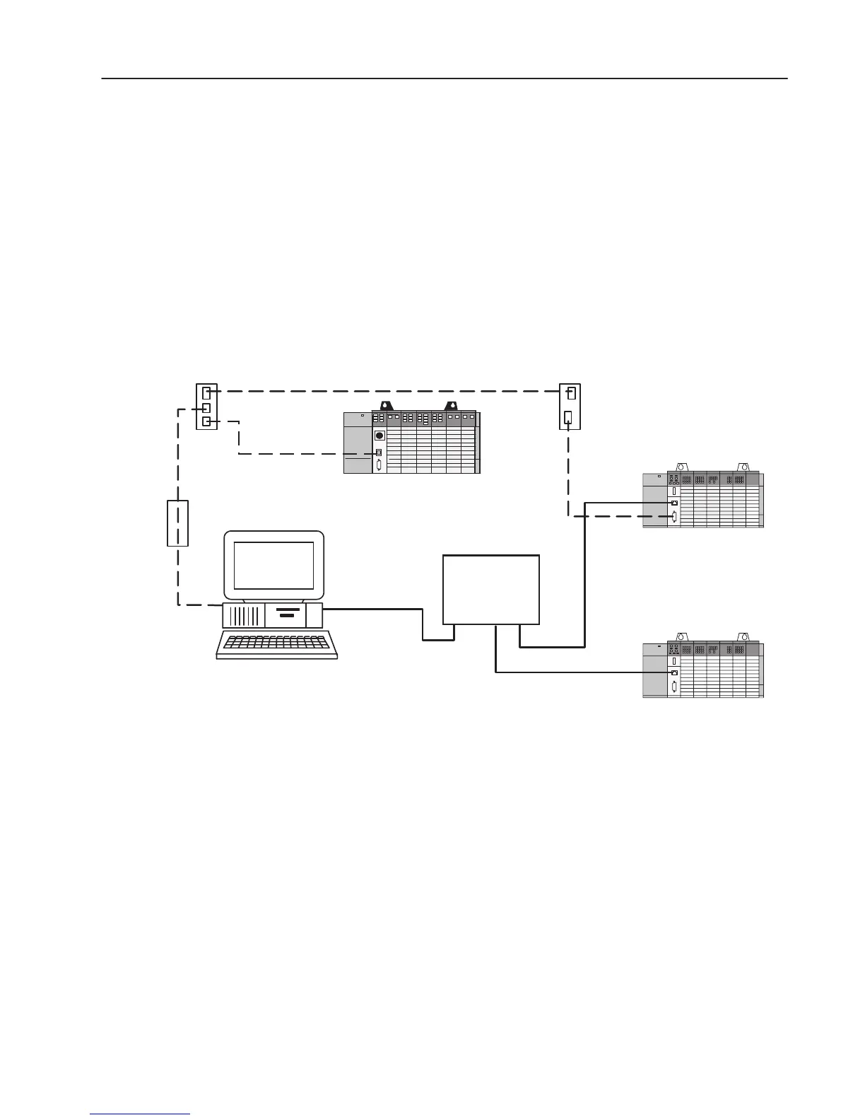
Example 2: DH485-to-Ethernet and Ethernet-to-DH485
In the following diagram, the SLC 5/03 uses DH485 protocol to send
a remote message to SLC 5/05 #1. The SLC 5/05 #1 passes the
message through to SLC 5/05 #2 via Ethernet. The SLC 5/05 #2 can
also send a message to the SLC 5/03 via the SLC5/05 #1 bridge.
The SLC 5/05 #1 processor routes the message to the SLC 5/03 via
DH485.
Important: In the SLC 5/05 #1 bridge, Status File Bit S:34/0 must
be set to 0 to enable DH485-to-Ethernet passthru. Set
Status File Bit S:34/5 to 0 to disable DF1-to-Ethernet
passthru.
SLC 5/03
Channel 1
DH485 Node 1
SLC 5/05 #1 Bridge
Channel 0
DH485 Node 2
IP Address 130.151.81.104
SLC 5/05 #2
IP Address 130.151.81.139
Ethernet
Ethernet Port
DH485
DH485
DH485
Ethernet Hub
1747-PIC
Interface
Converter
RS232 Port
Personal Computer
with
RSLinx and RSLogix 500
1747-AIC
1761-NET-AIC
1747-C11 Cable
SLC
5/03 Using DH485
The remote message ladder logic, setup, and channel configuration
are shown on page 5–12.

Table of Contents

Other manuals for Allen-Bradley SLC 500

Related product manuals