EasyManua.ls Logo

Allied 4DHV Mini-Split Series - Wiring Diagrams; Indoor Unit Wiring Diagrams

Allied 4DHV Mini-Split Series
75 pages
Print Icon
To Next Page IconTo Next Page
To Next Page IconTo Next Page
To Previous Page IconTo Previous Page
To Previous Page IconTo Previous Page
Loading...
508067-01Issue 2016Page 26 of 75
V2.0
2016/9/2
EXV
4-WAY
VALVE
TS
••••
COMPONENT IN DASH
LINE IS OPTIONAL
OR FIELD WIRING.
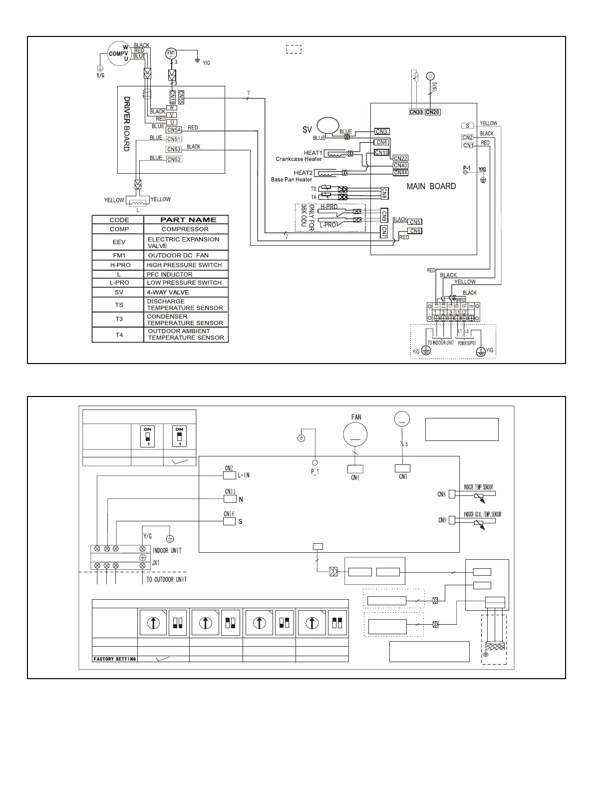
Figure 12. 36K 208/230VAC Outdoor Unit Wiring Diagram
WIRING DIAGRAM (INDOOR UNIT)
SWING MOTOR1
M
YELLOW
RED
M
5
1
2
3
BLACK
CN10A
DISP LA Y BOARD
8
Wired Controller
OPTIONAL
ADAPTER BOARD
CN3(CN301)
0
0
8
8
4
4
1
1
2
2
3
3
5
5
6
6
7
7
C
C
9
9
A
A
B
B
D
D
E
E
F
F
1
1
2
2
ON
ON
0
0
8
8
4
4
1
1
2
2
3
3
5
5
6
6
7
7
C
C
9
9
A
A
B
B
D
D
E
E
F
F
1
1
2
2
ON
ON
0
0
8
8
4
4
1
1
2
2
3
3
5
5
6
6
7
7
C
C
9
9
A
A
B
B
D
D
E
E
F
F
1
1
2
2
ON
ON
0
0
8
8
4
4
1
1
2
2
3
3
5
5
6
6
7
7
C
C
9
9
A
A
B
B
D
D
E
E
F
F
1
1
2
2
ON
ON
ENC2+S1
ENC2+S1
0~F
0~F
0~F
0~F
0~F
0~F
0~F
0~F
NETADDRESS
NETADDRESS
CODE
CODE
0~15
0~15
16~31
16~31
32~47
32~47
48~63
48~63
FOR SETTING NETADDRESS
FOR SETTING NETADDRESS
CN501
CN403
X Y E
To LVM
Comm.Bus
YELLOW
BROWN
RED
5
5
Programmable
Wired Controller
OPTIONAL
4
Note: The programmable wired
controller and LVM use the same
port CN403.
CN2(CN201)
NOTE: COMPONENT IN
DASH LINE IS OPTIONAL
OR FIELD WIRING
CN402
S5
FOR REMOTE ON/OF
FACTORY SETTING
MODE
REMOTE ON/OFF OFFREMOTE ON/OFF ON
Figure 13. 09K,12K, 18K and 24K - 115V and 208/230VAC Indoor Unit Wiring Diagram

Related product manuals