EasyManua.ls Logo

Alpha-InnoTec LWDV - Electrical Circuit Diagram (Part 2;3)

Alpha-InnoTec LWDV
40 pages
Print Icon
To Next Page IconTo Next Page
To Next Page IconTo Next Page
To Previous Page IconTo Previous Page
To Previous Page IconTo Previous Page
Loading...
35
Subject to technical amendments without prior notice | 83055800cUK – Translation of the operating manual | ait-deutschland GmbH
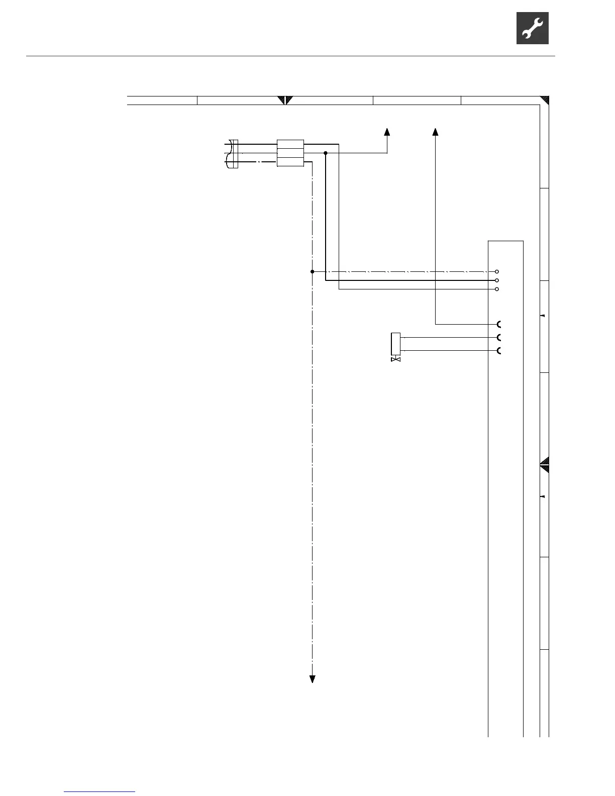
LWDV 9
-
a
Legend:
Equipement
1~N/PE/230V/50Hz
K40
K21
X10
-X10
UK
Function
Power supply controller 230V
Controller board; Attention: I-max = 6,3A/230VAC
Defrosting valve
Control voltage --> From hydraulic module
817449a
-K40
-X1
-X2
-K21
12345678
12 8
A
B
C
D
E
F
A
B
C
D
E
F
Blatt
Bl.
2
3
3 4567
AIT
817449
Stromlaufplan
ait-deutschland GmbH
PEP006/2017
ÄM999/2018
26.01.2017
07.03.2018
AP
AP
\z21
L E20
/1.C2
N E20
/1.C2
X10
1~N/PE/230V/50Hz
L
N
PE
PE
N
L
PE
/3.C8
Änderung Datum
Datum
Bearbeiter
Geprüft
NormName
24.09.2014
Pfleger
R.
L N PE
OUT4
N
OUT3
Circuit diagram 2/3 LWDV

Table of Contents

Related product manuals