EasyManua.ls Logo

alphatronics AlphaVision New Generation - Control panel fuses

alphatronics AlphaVision New Generation
101 pages
Print Icon
To Next Page IconTo Next Page
To Next Page IconTo Next Page
To Previous Page IconTo Previous Page
To Previous Page IconTo Previous Page
Loading...
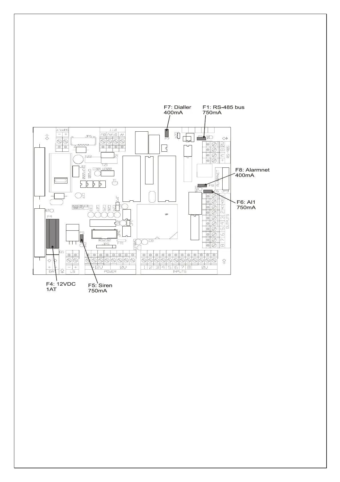
Control panel fuses
The AlphaVision NG control panel has one glass fuse and five semi conductor fuses. The glass fuse F4
(standard 1A slow) is for the outgoing +12V (the four +12V clamps above the “Power” print). The five semi
conductor fuses become high ohm when the drawn current exceeds the limited value. When the drawn
current drops below the limit, the fuse will become low ohm again and restores itself automatically. Besides
each semi conductor fuse a red LED is placed, which lights as long the fuse is activated.
Use figure 6 to locate the fuses on the circuit board:
Figure 5. AlphaVision NG control panel fuses
F1 750mA (self restoring) secures the outgoing +12V of the RS-485 bus. When the (peak) current drain of
the RS-485 bus is higher than 750mA, the +12V of the RS-485 bus must be taken from the +12V clamps at
the “Power” connections. This can be the case when several expansion modules take their power from the
RS-485 bus.
F4 1A slow (glass fuse) secures the outgoing +12V at the “Power” connections.
F5 750mA (self-restoring) secures the LS output.
F6 750mA (self-restoring) is taken in the common contact of the AL1 relay.
F7 400mA (self-restoring) is taken in the primary line of the telephone connection.
F8 400mA (self-restoring) secures the power supply of the Alarmnet outputs (DK only).
AlphaVision NG installation manual Rev. 2.0 27-08-2003 Blz. 11/101

Table of Contents