EasyManua.ls Logo

alphatronics AlphaVision New Generation - New Situation Access Control Example

alphatronics AlphaVision New Generation
101 pages
Print Icon
To Next Page IconTo Next Page
To Next Page IconTo Next Page
To Previous Page IconTo Previous Page
To Previous Page IconTo Previous Page
Loading...
RO1
PR1
KP1KP3
KP2
PIR1
MC1
MC2
MC3
MC4
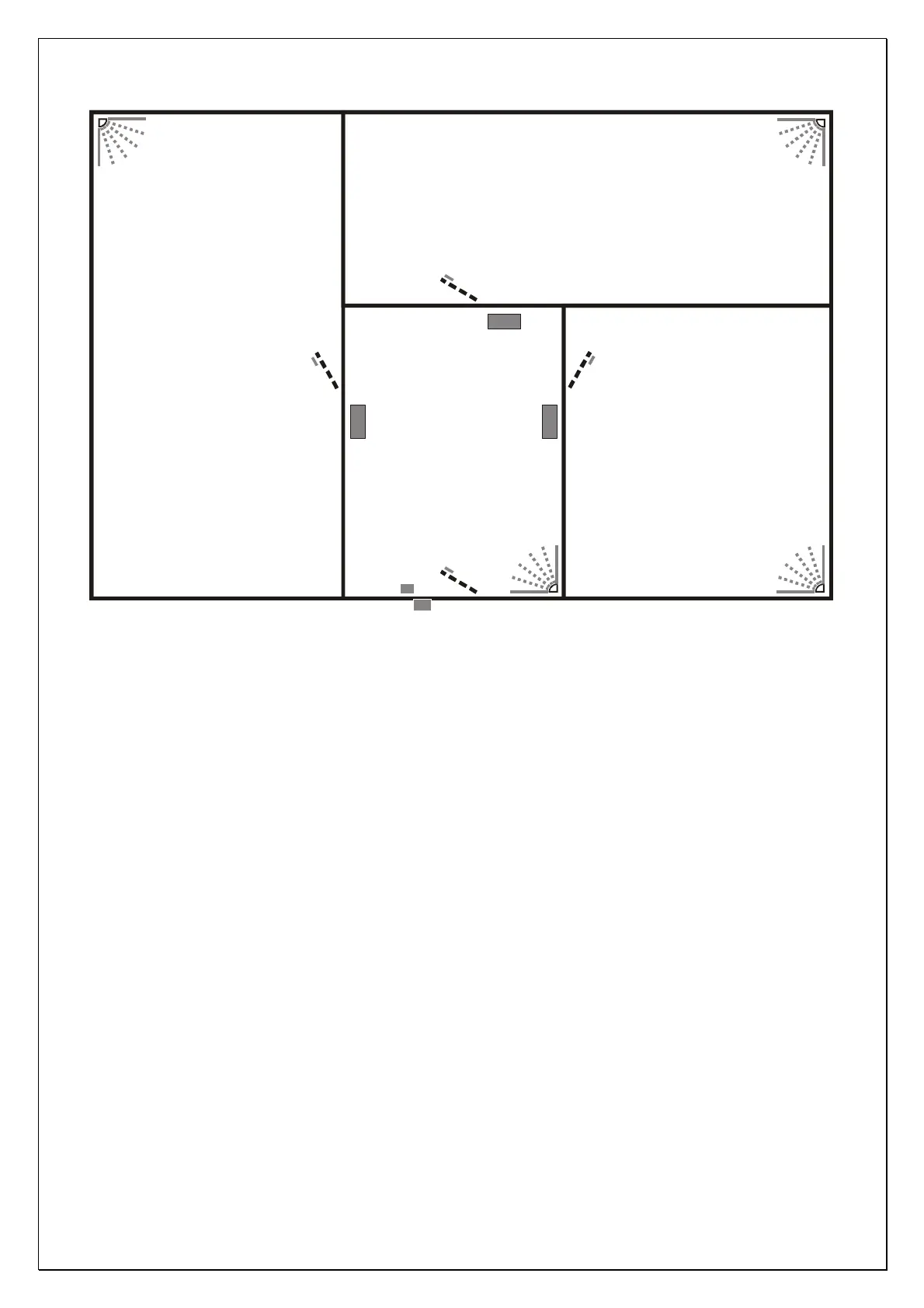
HALL
section ABC
OFFICE 1
section A
OFFICE 2
section B
OFFICE 3
section C
PIR2
PIR3PIR4
Installation description ‘new’ situation
At the front door, a magnetic contact is placed (MC1, delayed, section ABC, zone 1). Next to the front door,
a Proximity Reader (PR1, section ABC, OC output not used, triggers entry delay YES, last door function
YES) is placed. The front door is supplied with an electric door strike, which is controlled by an RO module
(RO1). In the hall, a PIR is placed (PIR1, follower, section ABC, zone 2).
In the hall, an LCD/PROX keypad is placed at every access door to the departments. At the access door of
office 1 (section A) a keypad (KP1) is placed with the buzzer programmed to section A, at the access door of
office 2 (section B) a keypad (KP2) is placed with the buzzer programmed to section B, and at the access
door of office 3 (section C) a keypad (KP3) is placed with the buzzer programmed to section C.
The access doors of the departments are supplied with magnetic contacts. On the door of office 1 magnetic
contact 2 (MC2, delayed, section A, zone 3) is placed, on the door of office 2 magnetic contact 3 (MC3,
delayed, section B, zone 4) is placed, and on the door of office 3 magnetic contact 4 (MC4, delayed, section
C, zone 5) is placed.
In the offices PIR detectors are placed: office 1(PIR2, follower, section A, zone 6), office 2 (PIR3, follower,
section B, zone 7) and office 3 (PIR4, follower, section C, zone 8).
Functioning of the ‘new’ situation
Employee A arrives and presents his Tag (level 7, section A). The front door is opened, the entry delay of
section A (MC1, PIR1, MC2 and PIR2) starts to countdown and the buzzer of keypad 1 starts to beep.
Employee A then disarms section A by presenting his Tag to keypad A. Next Employee B arrives, who also
presents his Tag (level 7, section B) to the Proximity Reader. The front door is opened, entry delay of
section B (MC3 and PIR3) is started, and the buzzer of keypad 2 starts to beep. Then Employee B disarms
section B by presenting his Tag to keypad 2.
AlphaVision NG installation manual Rev. 2.0 27-08-2003 Blz. 91/101

Table of Contents