EasyManua.ls Logo

Altek SR1128 - Menu Structure

Default Icon
38 pages
Print Icon
To Next Page IconTo Next Page
To Next Page IconTo Next Page
To Previous Page IconTo Previous Page
To Previous Page IconTo Previous Page
Loading...
SR1128 operation manual
~8~
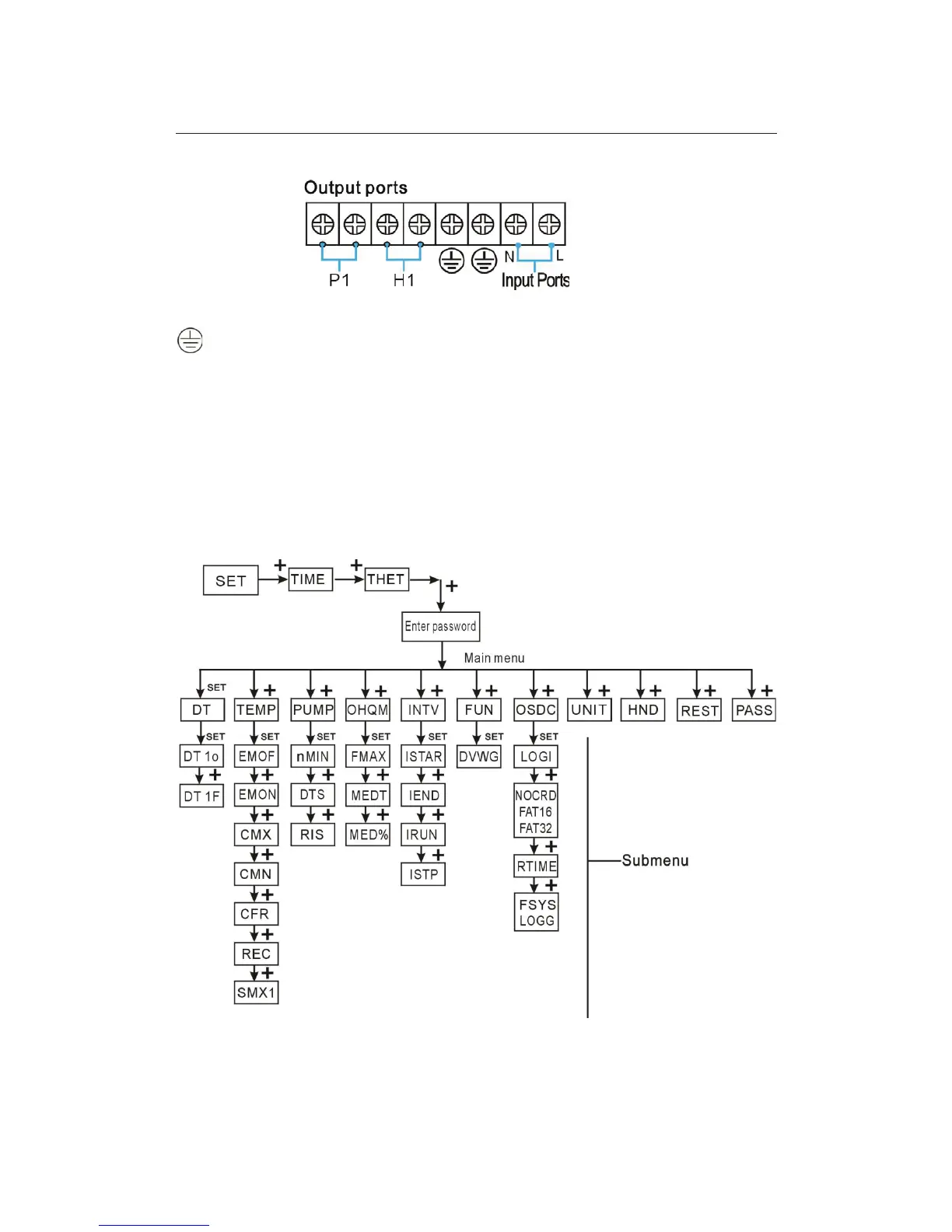
z Output ports
Input Ports: Input ports L, N is power connection terminal, please connect correctly.
is Ground line terminal.
Output P1˖Semiconductor relay (SCR relay), for solar circuit pump, also suitable for RPM
(speed) control; Max. Switching current: 1A.
Output H1˖for by-pass circuit pump or valve, electromagnetic relay, max. switching current
3.5A, R1 ports are always open
Note: Depending on the solar system selection, pump and sensors should be connected to
the controller are different, all wires should be installed in protection pipe.
3.4 Menu structure
Submenu:
Through submenu, user can set the parameter as desired value, please check it carefully.

Table of Contents