EasyManua.ls Logo

AMERITRON ALS-1306 - Schematics; Filter 2 KWF6

AMERITRON ALS-1306
32 pages
Print Icon
To Next Page IconTo Next Page
To Next Page IconTo Next Page
To Previous Page IconTo Previous Page
To Previous Page IconTo Previous Page
Loading...
Revision 2
25
Schematics
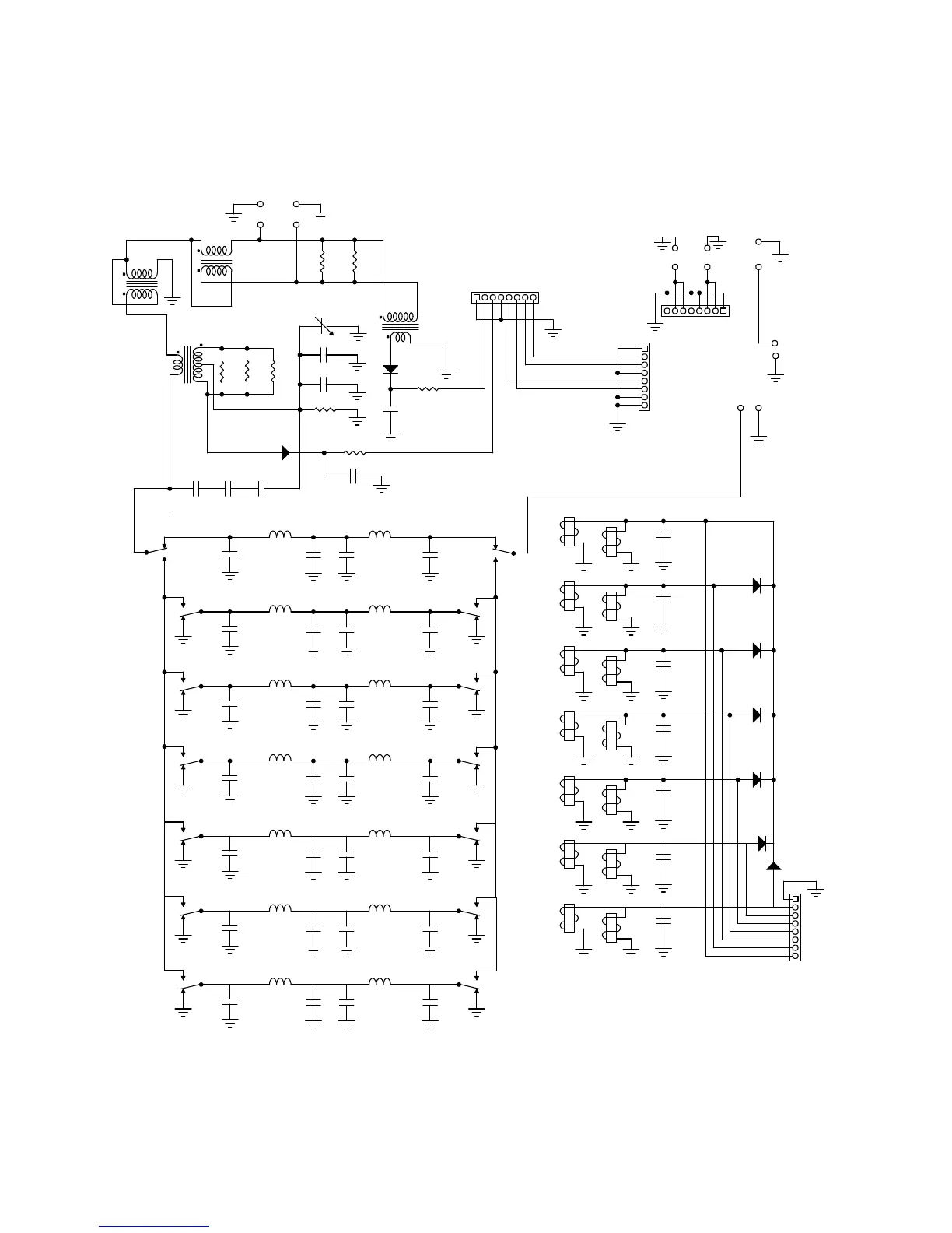
Filter 2KWF6
2KWF6 Rev1.2
160 Meters
80 Meters
40 Meters
20 Meters
15 Meters
10 Meters
6 Meters
GndGnd
Gnd
PA IN
T2
C40
220pF
D2
1401
C41
220pF
C42
250V 12-90pF
C36
30pF
C37
30pF
C38
30pF
C39
0.01uF
T3
C35
0.1uF
RL1 RL2
L1
16T
L2
16T
C2
1500
C3
1500
C1
1500
C4
1500
RL3 RL4
L3
11T
L4
11T
C6
680
C7
680
C5
680
C8
680
RL5 RL6
L5
12T
L6
12T
C10
360
C11
360
C9
360
C12
360
RL7 RL8
L7
8T
L8
8T
C14
270
C15
270
C13
270
C16
270
C20
180
C17
180
C19
180
C18
180
L10
6.5T
L9
6.5T
RL10RL9
C24
91
C21
91
C23
91
C22
91
L12
5.5
L11
5.5
RLY12RLY11
C28
56
C25
56
C27
56
C26
56
H1
RADIO
Ant
Rly Board
L14
3.5
RLY14
L13
3.5
RLY13
RL2
RL1
RL3
RL4
RL6
RL5
RL8
RL7
RL10
RL9
RL12
RL11
RL14
RL13
C34
0.1uF
C33
0.1uF
C32
0.1uF
C31
0.1uF
C30
0.1uF
C29
0.1uF
D8
D7
D6
D5
D4
J1
D3
T1
7to1
C43
0.001uF
D1
1401
Rly Board
J2
H2
T4
PA BPA A
Gnd
Gnd
R3
10k
R5
150
R6
150
R2
1.5k
R4
150
R11k
R7
200
R8
200
2KWF6 output filter Figure 3

Other manuals for AMERITRON ALS-1306

Related product manuals