EasyManua.ls Logo

Bambi VT75 - Wiring Diagrams - Single Phase VT Models; VT Series Single Phase Wiring Schematics

Bambi VT75
32 pages
Print Icon
To Next Page IconTo Next Page
To Next Page IconTo Next Page
To Previous Page IconTo Previous Page
To Previous Page IconTo Previous Page
Loading...
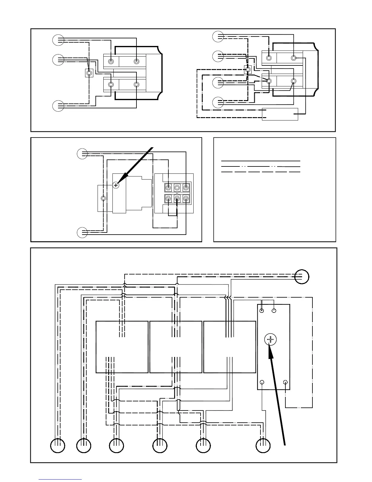
VT75/150/200/250
VT75D/150D/200D/250D
VT300/400
VT300D/400D
DO NOT ALTER!!
Wiring Diagrams - SINGLE PHASE- VT
K
- Live
- Neutral
- Earth
KKEY:
27
A1 15
18 A2
DO NOT ALTER!!
VT300/400/300D/400D
[Electrics enclosure]
Motor 1
Fan 1 Solenoid 1 Fan 2 Solenoid 2
Motor 2
Supply
1
5
To electrics
enclosure
1 - Supply
2 - Solenoid
3 - Earth
4 - Motor
5 - Pressure Switch
6 - Cooling fan
7 - Timer box [VT250D only]

Other manuals for Bambi VT75

Related product manuals