EasyManua.ls Logo

BeaconMedaes MEGA 2 - Page 14

BeaconMedaes MEGA 2
56 pages
Print Icon
To Next Page IconTo Next Page
To Next Page IconTo Next Page
To Previous Page IconTo Previous Page
To Previous Page IconTo Previous Page
Loading...
14
Part No. 6-847684-00 Rev. D01
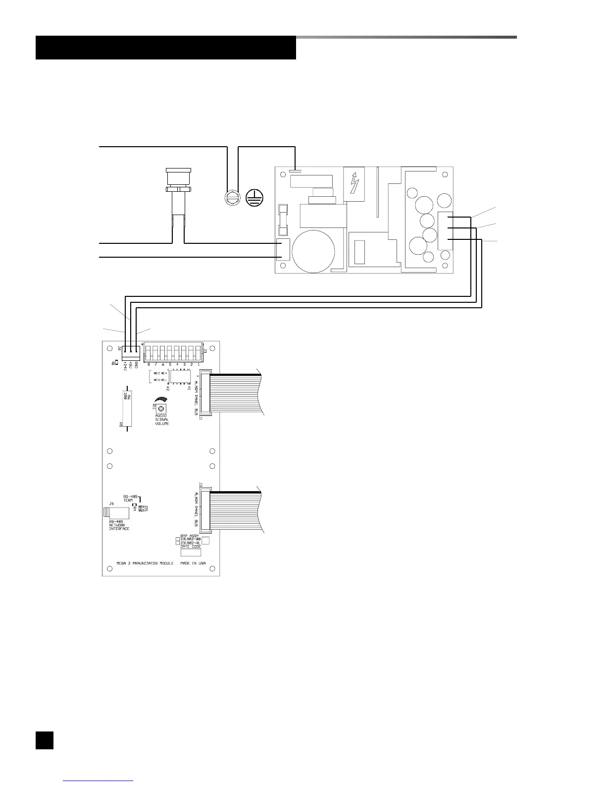
Wiring Schematic 1: Power Supply Module
Annunciator Module
20-wire ribbon cable
to adjacent module
20-wire ribbon cable
to adjacent module
Power Supply
Fuse Holder
Ground (green)
Line (black)
Neutral (white)
3-wire power supply harness
120V AC Mains Power Connections
Ground
Screw
Red
Orange
Black
Red
Orange
Black

Related product manuals