EasyManua.ls Logo

BendPak HDS-14LSX - Creating Chalk Line Guides

BendPak HDS-14LSX
80 pages
Print Icon
To Next Page IconTo Next Page
To Next Page IconTo Next Page
To Previous Page IconTo Previous Page
To Previous Page IconTo Previous Page
Loading...
HDS-14LSX / HDS-14LSXE Lifts 15 P/N 5900162 — April 2018 — Rev. F3
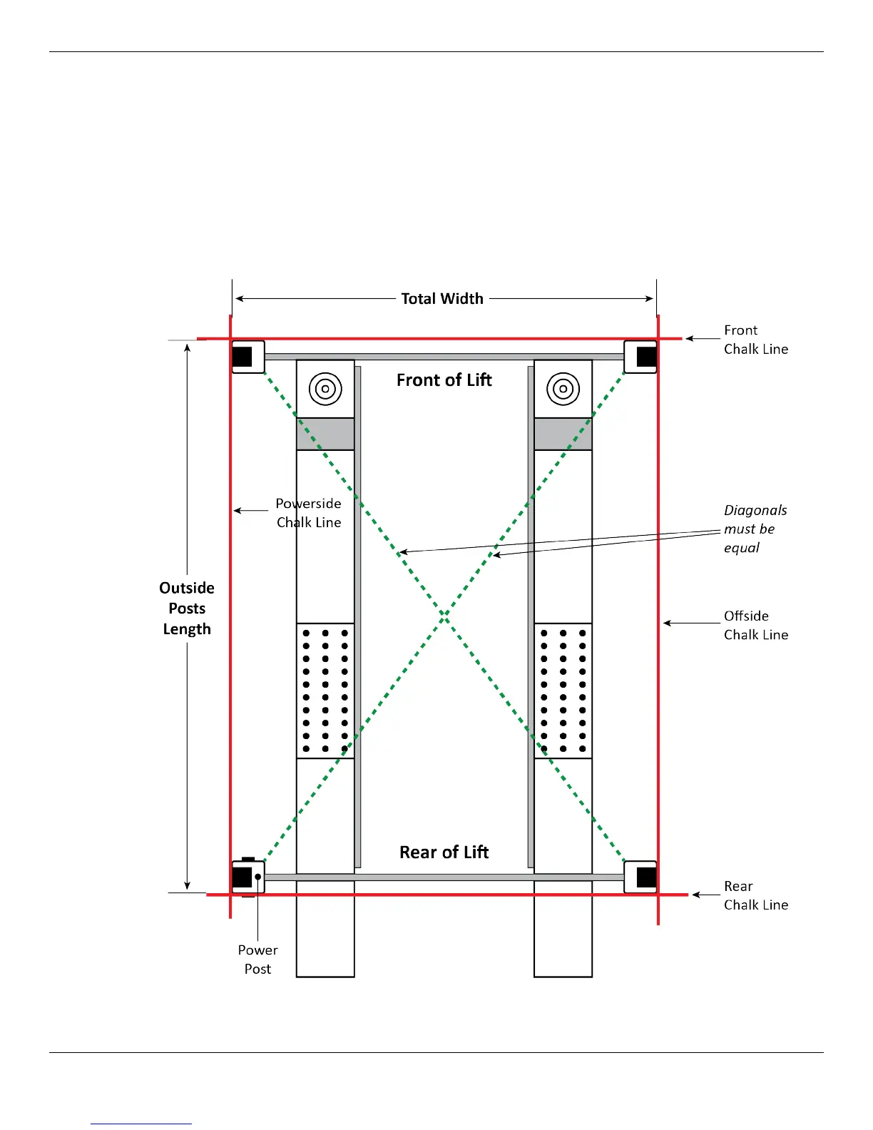
Creating Chalk Line Guides
Use Chalk Line Guides to ensure that your Posts get installed correctly.
Create the Chalk Line Guides so that the outside edges of all four Post bases fit into the four corners
created by the Chalk Line Guides.
Refer to Specifications to determine the Total Width and Outside Posts Length values for
your Lift.
Note: Do
not
use the Total Length value; this includes the Ramps, which are not taken into
consideration for creating Chalk Line Guides.

Other manuals for BendPak HDS-14LSX

Related product manuals