EasyManua.ls Logo

BendPak HDS-14LSX - Specifications

BendPak HDS-14LSX
80 pages
Print Icon
To Next Page IconTo Next Page
To Next Page IconTo Next Page
To Previous Page IconTo Previous Page
To Previous Page IconTo Previous Page
Loading...
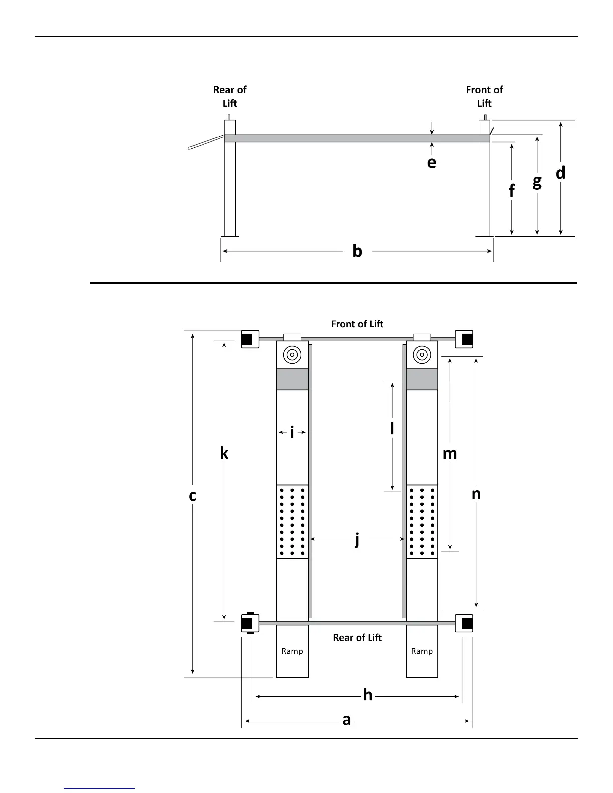
HDS-14LSX / HDS-14LSXE Lifts 9 P/N 5900162April 2018 Rev. F3
Specifications
Side View
Top View

Other manuals for BendPak HDS-14LSX

Related product manuals