EasyManua.ls Logo

Bentone BG200 - Operation and Assembly Instructions; Double Solenoid Valve Type DMV-D

Bentone BG200
58 pages
Print Icon
To Next Page IconTo Next Page
To Next Page IconTo Next Page
To Previous Page IconTo Previous Page
To Previous Page IconTo Previous Page
Loading...
38
172 505 23 09-01
OPERATION AND ASSEMBLY INSTRUCTIONS
Double solenoid valve Type DMV-D.../11 Type DMV-DLE.../11
Nominal widths
Rp 1/2 - Rp 2
Volt U n ~(AC) 230 V
Valve 2 x Class A
Ambient temperature -15 °C … +60 °C
IP 54
Family 1 + 2 + 3
Max. operating pressure 500 mbar
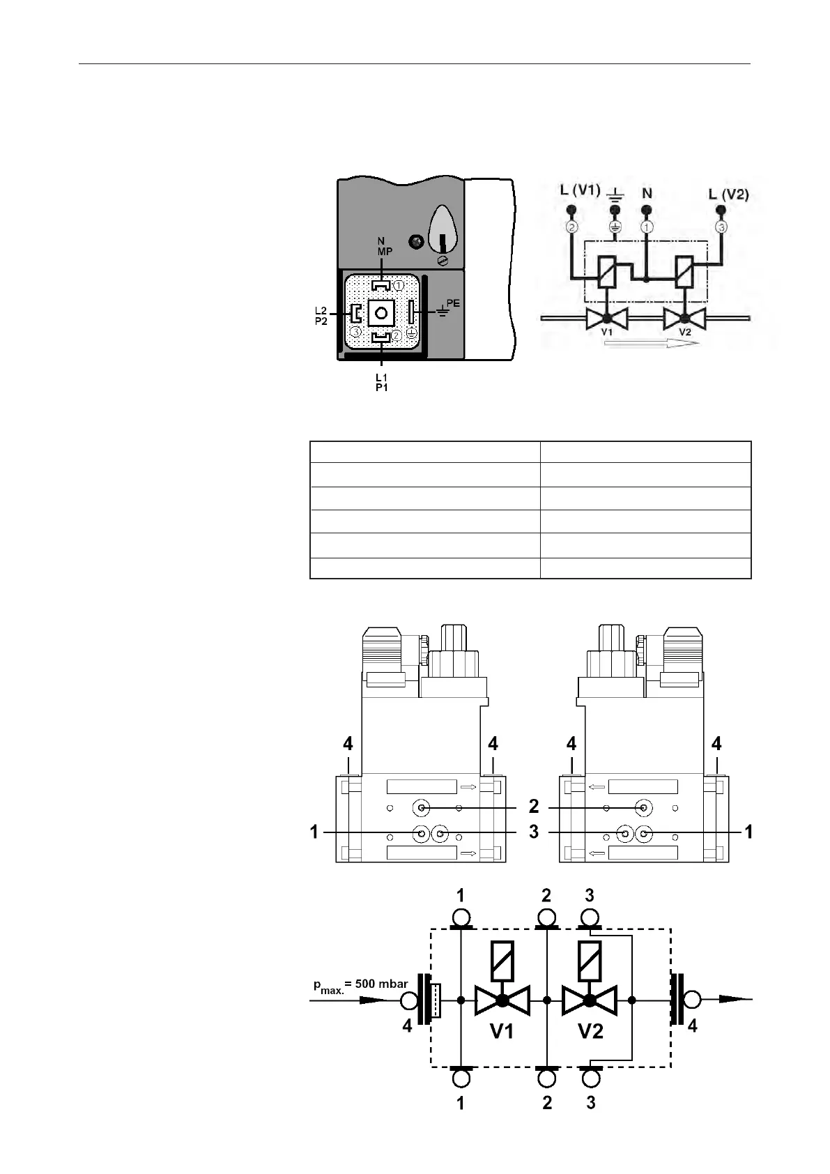
1(3)
Electrical connection IEC 730-1 (VDE 0631 T1)
DMV 505-520/11
Pressure taps 1, 2, 3, 4 Sealing plug
Screw plugs 1,2,3 may also be
replaced by a measuring socket
G 1/8 DIN ISO 228.
Concealed connecting bore for sys-
tem accessories.

Table of Contents

Related product manuals