EasyManua.ls Logo

Bentone LMO14.113C2E - Wiring Diagram

Bentone LMO14.113C2E
44 pages
Print Icon
To Next Page IconTo Next Page
To Next Page IconTo Next Page
To Previous Page IconTo Previous Page
To Previous Page IconTo Previous Page
Loading...
13 Bentone
165 105 21-2
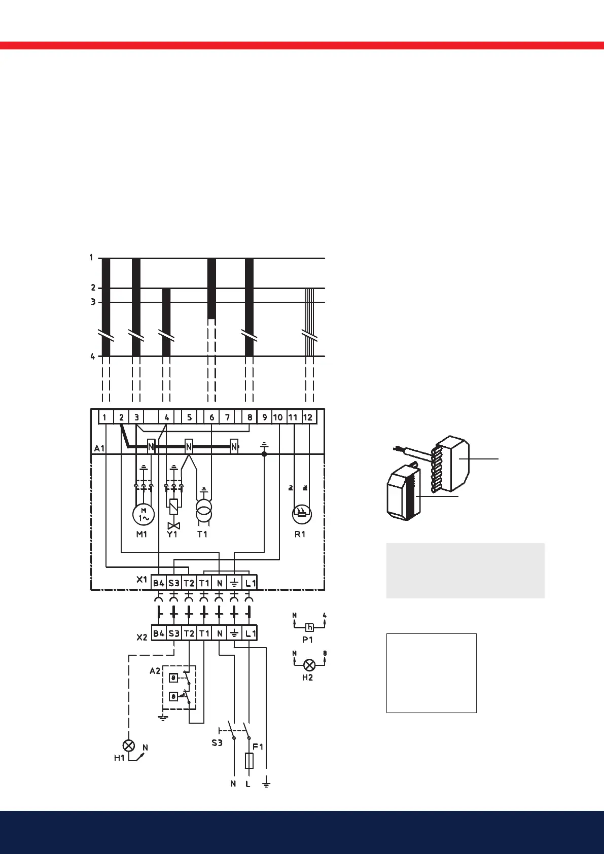
3. Electric equipment
3.1 Safety system
The safety system (safety switch for hatches, doors, water level, pressure,
temperature and other safety devices) must be installed in the safety circuit
in accordance with current regulations for the system.
The cables of the safety system must be separated so that the outgoing
signal is not placed in the same cable as the incoming signal.
3.2 Wiring diagram
Outer electrical connection
X1
X2
!
Mains connection and fuse
in accordance with local
regulations.
Bn Brown
Bu Blue
Gn/Ye Ground/Yellow
Bk Black
Gy Grey
E106234

Related product manuals