EasyManua.ls Logo

BIRO EMG-32 - Electric Foot Switch; Electric Foot Switch Wiring; Electric Foot Switch Parts

BIRO EMG-32
40 pages
Print Icon
To Next Page IconTo Next Page
To Next Page IconTo Next Page
To Previous Page IconTo Previous Page
To Previous Page IconTo Previous Page
Loading...
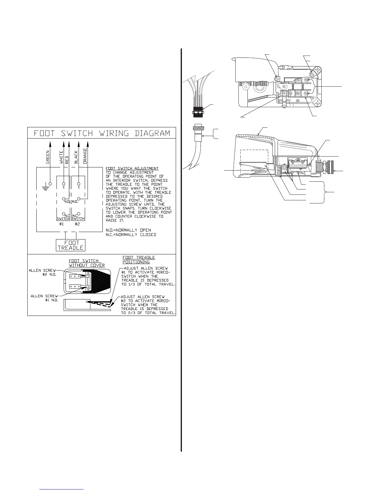
FOOT SWITCH PARTS LIST
224-2
Cord connector, wt, straight, ¾”
52654
Male plug w/ 6’ cord, 5 wire
52655
Female receptacle, 5 pole
52661
Male plug w/ 12’ cord, 5 wire
52668
Foot switch w/ 12’ cord and plug
53693
Foot switch
53693-A
Cover guard
53693-C
Cover gasket
53693-D
Cover screw- short
53693-E
Cover screw- long
53693-F
Ground screw
53693-G
Treadle spring
53693-H
Internal assembly complete
53693-I
Actuator
53693-M
Micro switch BA2R62-A4
53693-O
Washer
53693-T
Treadle w/ actuator & return spring
53693-U
Auxiliary treadle return spring
53693-W
Treadle
53693-X
One actuator & actuator spring assembly
54213
Foot switch w/6’ cord & plug
20
ELECTRIC FOOT SWITCH
52655
52654
52661
53693-E
53693-D
53693-O
53693-H
53693-M
53693-X
53693-A
53693-F
53693-C
224-2
53693-I
53693-X
53693-U
53693-W
53693-T
53693-G

Related product manuals