EasyManua.ls Logo

BIRO EMG-32 - Electrical Subplate Components

BIRO EMG-32
40 pages
Print Icon
To Next Page IconTo Next Page
To Next Page IconTo Next Page
To Previous Page IconTo Previous Page
To Previous Page IconTo Previous Page
Loading...
26
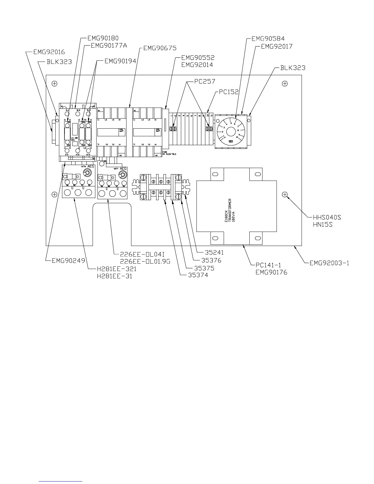
ELECTRICAL SUBPLATE COMPONENTS
Part No.
Description
226EE-OL01.9G
Overload, B18K-G, 1.3-1.9AMP, 440-460V
226EE-OL4I
Overload, B18K-I, 2.5-4 AMP, 208-240V
BLK323
End barrier
EMG90177A
Contactor 24V coil w/ aux. contacts
EMG90180
Aux. contact block-N.C.
EMG90194
Aux. contact block-N.O.
EMG90249
Buss, connecting link-LSK series
EMG90552
Fuse 3 AMP- time delay
EMG90584
Timer- on delay
Part No.
Description
EMG90675
Reversing contactor- 24 volt
EMG92003-1
Subplate electrical
EMG92014
Fuse block
EMG90176
Transformer 200/208/230/460- 24V
EMG92016
Din rail- 11” long
EMG92017
Timer socket
H281EE-31
Overload, B18K-N, 10-16 Amp, 440-460V
H281EE-321
Overload, B18K-ON, 21-26 Amp, 208-240V
HHS040S
Hex head screw ¼-20 x ¾ SS
HN15S
Hex nut ¼-20 SS
PC141-1
Transformer 208/240-277/380/480V - 24V
PC152
Terminal
PC257
Jumper- internal 6mm
35241
Mounting bracket
35374
Terminal block
35375
End barrier
35376
End anchor

Related product manuals