EasyManua.ls Logo

BIRO EMG-32 - Safety Labels Identification

BIRO EMG-32
40 pages
Print Icon
To Next Page IconTo Next Page
To Next Page IconTo Next Page
To Previous Page IconTo Previous Page
To Previous Page IconTo Previous Page
Loading...
33
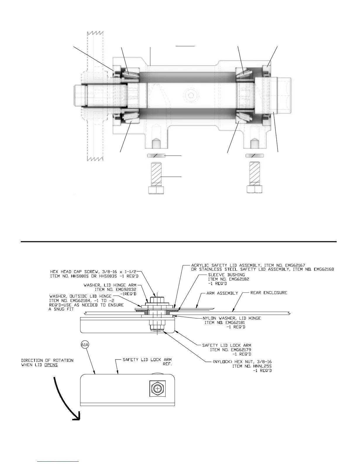
RIGHT HAND HINGE ASSEMBLY SHOWN IN CLOSED POSITION
ITEM No. 53886 JOURNAL BOX ASSEMBLY
53785
53939
53889
not shown
234
LW35S
HHS153S
53940
53888
53724
53609
53785
Description
Item No.
53886
Journal box assembly
53609
Journal box housing
53724
Auger drive shaft
53785
Journal box seal (2 ea.)
53889, 53939
Rear bearing cup/cone assembly
53888, 53940
234
Grease tting ⅛ NPT
Front bearing cup/cone assembly
LW35S
Lock washer ⅝, SS (4 ea.)
HHS153S
Hex head screw ⅝-18 x 1½, SS (4 ea.)
Use H310A
Use H311A
Description
Item No.

Related product manuals