EasyManua.ls Logo

Bluetti EP760 - Page 52

Bluetti EP760
80 pages
Print Icon
To Next Page IconTo Next Page
To Next Page IconTo Next Page
To Previous Page IconTo Previous Page
To Previous Page IconTo Previous Page
Loading...
JUST POWER ON52
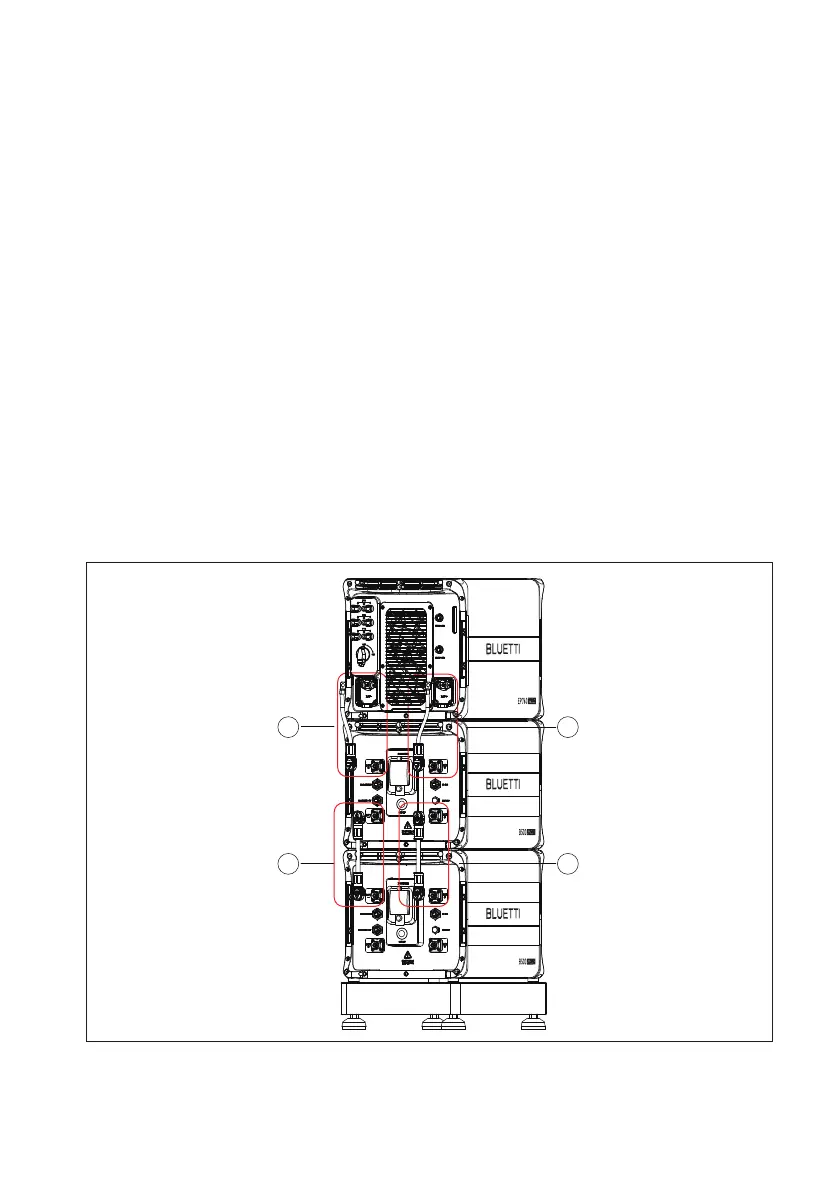
6.6.3 Connect Battery Power Cables
Step 1Connect two B500 battery packs via the battery expansion cables - black
cable for negative terminals, red for positive terminals. See “” “” of Figure 6-9-1
and 6-9-2.
Step 2Connect the top B500 to EP760 inverter via the battery power cables - black
cable for negative terminals, red for positive terminals. See “” “” of Figure 6-9-1
and 6-9-2.
Fix the black battery power cable to the EP760 inverter BAT- terminal with M8
screws.
Secure the black protection cover with M4 screws. See Figure 6-9-3.
Connect the other end of the cable to the B500 BAT- terminal.
Repeat to connect the red battery power cable. See Figure 6-9-4.
Recommended torque: Less than 6Nm for M8 screws, 1.2Nm for M4 screws.
Step 3Check that the cables are properly connected.
Figure 6-9-1
1
2
4
3

Related product manuals