EasyManua.ls Logo

BONFIGLIOLI ACTIVE Cube ACU 401-45 - ACU 401 (37.0 to 65.0 kW)

BONFIGLIOLI ACTIVE Cube ACU 401-45
292 pages
Print Icon
To Next Page IconTo Next Page
To Next Page IconTo Next Page
To Previous Page IconTo Previous Page
To Previous Page IconTo Previous Page
Loading...
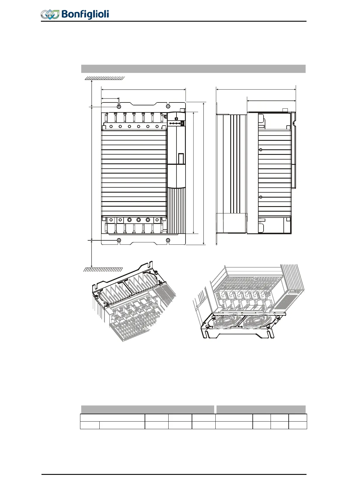
5.4 ACU 401 (37.0 to 65.0 kW)
The frequency inverter is mounted in a vertical position on the assembly panel by
means of the standard fittings. The following illustration shows the standard fitting.
Standard installation
fixing braket top
(fixing with screws ) M5x20
fixing braket bottom
(fixing with screws )M5x20
a
a1
a2
x
x 100 mm
b
b1
x
c
c1
Assembly is done by screwing the two fixing brackets to the heat sink of the frequen-
cy inverter and the assembly panel.
The frequency inverters are provided with fixing brackets, which are fitted using four
thread-
cutting screws. The dimensions of the device and the installation dimensions
are those of the standard device without optional components and are given in milli-
meters.
Dimensions [mm]
Installation dimensions [mm]
ACU
a
b
c
a1
a2
b1
c1
401
37...65 kW
400
275
260
425 … 445
470
20
160
46 Operating Instructions ACU
06/13

Table of Contents

Related product manuals