EasyManua.ls Logo

Bosch 4212 - Coupe de Moulures de Base; Coupe de Moulures en Couronne

Bosch 4212
112 pages
Print Icon
To Next Page IconTo Next Page
To Next Page IconTo Next Page
To Previous Page IconTo Previous Page
To Previous Page IconTo Previous Page
Loading...
101.
Coupe de moulures de base
Les moulures de base peuvent être sciées en position verticale
contre le guide ou à plat sur la table. La taille maximale qui peut
être sciée verticalement sur le guide est de 4-1/4 po et de 8 po
à plat sur la table.
Reportez-vous au tableau ci-dessous, vous y trouverez des
conseils utiles pour le sciage de moulures de base pour des
coins à 90°.
Coupe de moulures
en couronne
Les corniches (moulures en couronne) doivent être sciées et
positionnées cor
r
ectement afin de s’ajuster par
faitement.
Il y a deux manièr
es de scier des cor
niches, à plat sur la table
ou en angle par rappor
t à la table et au guide.
L’angle de dévers de la corniche est l’angle entre l’arrière de la
cor
niche et la surface plate inférieur
e qui est appliquée au
mur.
La scie à onglets est dotée de crans d’onglet spéciaux à 31,6°
et de biseau à 33,9
°
. Ces crans vous per
mettent de
positionner facilement la plupar
t des cor
niches à plat sur la
table et de faire des coupes précises pour des coins à 90°.
(Ces crans ne fonctionnent qu’avec les corniches ayant un
dévers de 38
°
). REMARQUE : Ces crans ne peuvent pas êtr
e
utilisés avec les cor
niches à 45
°.
Voir aussi page 97 et 98 Vous y trouverez des tableaux qui
vous donnent les angles d’onglet et de biseau à utiliser pour
couper des corniches avec dévers de 38° et 45° (avec la pièce
posée à plat sur la table).
Bien que ces angles soient standards, les coins de la plupart
des pièces ne sont pas exactement à 90
°
. Il sera donc
nécessaire d’affiner votre réglage.
Le rappor
teur d’angle numérique en option Bosch DWM40L
MiterFinder™ per
met de mesurer les angles de dévers et les
angles de coins et de déterminer automatiquement les
réglages exacts de l’onglet et du biseau qui sont nécessaires
pour faire des coupes par
faites à chaque coin.
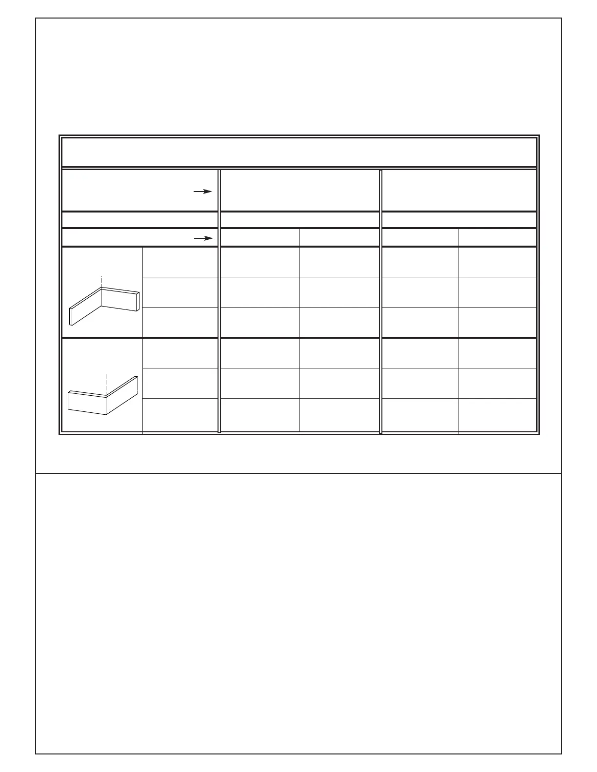
INSTRUCTIONS DE COUPE DE MOULURES DE BASE
POSITION DE Moulure en position verticale : Moulure en position horizontale :
LA MOULURE Dos de la moulure Dos de la moulure à
SUR LA SCIE contre le guide plat contre la table
Partie de la moulure sciée À gauche du coin À droite du coin À gauche du coin À droite du coin
Coin intérieur Angle d’onglet Gauche à 45° Droit à 45°
du mur Angle de biseau 45° à gauche 45° à droite
Position de la Fond contre Fond contre Dessus contre Dessus contre
moulure sur la scie la table la table le guide le guide
Côté Gardez le côté Gardez le côté Gardez le côté Gardez le côté
fini gauche de la coupe droit de la coupe gauche de la coupe droit de la coupe
Coin extérieur Angle d’onglet Droit à 45° Gauche à 45°
du mur Angle de biseau 45° à gauche 45° à droite
Position de la Fond contre Fond contre Dessus contre Dessus contre
moulure moulure sur la scie la table le guide le guide le guide
Côté Côté fini Gardez le côté Gardez le côté Gardez le côté Gardez le côté
gauche de la coupe droit de la coupe droit de la coupe droit de la coupe
Left
Right
Left
Right
Gauche
Droit
Gauche
Droit

Table of Contents

Related product manuals