EasyManua.ls Logo

Brivo ACS5000-E - Wire INPUT OUTPUT Boards; Ground the Control Chassis

Brivo ACS5000-E
29 pages
Print Icon
To Next Page IconTo Next Page
To Next Page IconTo Next Page
To Previous Page IconTo Previous Page
To Previous Page IconTo Previous Page
Loading...
Brivo ACS Installation Manual ACS5000-E
ENG-WI-001 © 2005 Brivo Systems, LLC. All rights reserved. Page 27
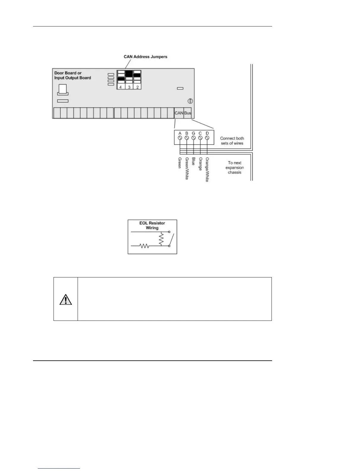
Wire INPUT OUTPUT BOARDs
Figure 16. Wire INPUT OUTPUT BOARD
1. An INPUT OUTPUT BOARD has 8 output relays with 125VAC, 3A Relays, and 8 inputs.
The
inputs can be wired for line supervision.
Figure 17. EOL Resister Wiring
WARNING: Powering Electronic Strikes and Latches
DO NOT POWER ELECTRONIC STRIKES AND LATCHES WITH THE BATTERY
(OR OTHER POWER SOURCE) USED TO POWER THE CONTROL PANEL;
DOING SO WILL CAUSE DAMAGE TO THE BRIVO CONTROL PANEL. USE ONLY
A UL LISTED BURGLAR ALARM OR ACCESS CONTROL SYSTEM TO POWER
ELECTRONIC STRIKES AND LATCHES.
Ground the control chassis.
1. Wire the control chassis to the green Earth Ground screw.