EasyManua.ls Logo

Brute FT Series - Boiler Dimensions and Diagrams

Brute FT Series
100 pages
Print Icon
To Next Page IconTo Next Page
To Next Page IconTo Next Page
To Previous Page IconTo Previous Page
To Previous Page IconTo Previous Page
Loading...
The FT Series Heating Only, Boiler
Page 9
8page (80~140)
15
529.0"
3
10
3
5
11
17
A B
C
D
E
F
2.0"
2
10
3/8”
1/2”
3/4”
3/4”
3/4”
7/8”
3/8”
3/4”
3/8”
1/2”
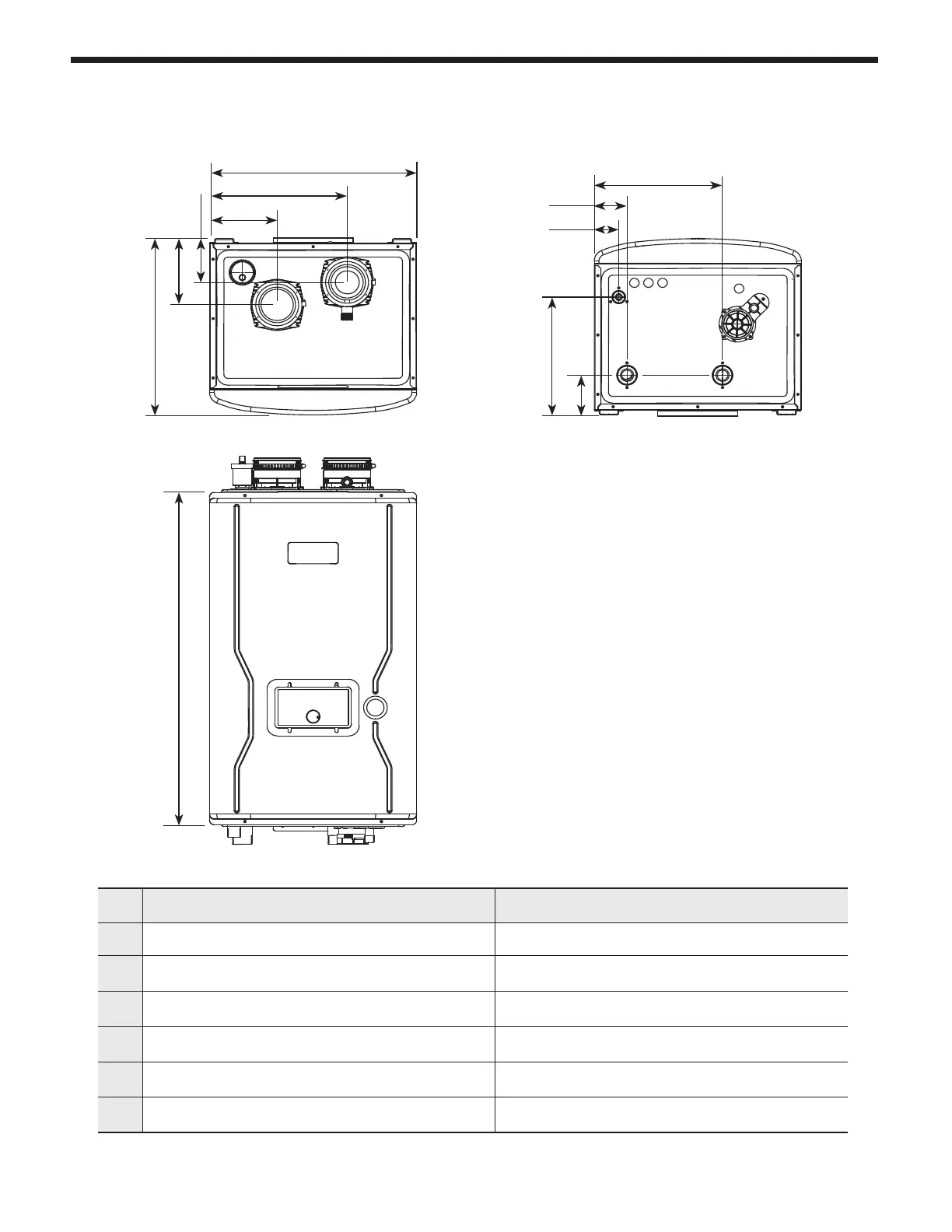
TOP VIEW
BOTTOM VIEW
FRONT
VIEW
Description Diameter
A Air Intake Collar
B Vent Pipe Collar
C 'CH' Supply
1
¼˝
D 'CH' Return
1
¼˝
E Gas Inlet 3/4˝
F Condensate Line 1/2˝
FTHW
100 / 140
Heating only boiler
2.3 Dimensions

Table of Contents