EasyManua.ls Logo

Bryant 333JAV - Page 14

Bryant 333JAV
28 pages
Print Icon
To Next Page IconTo Next Page
To Next Page IconTo Next Page
To Previous Page IconTo Previous Page
To Previous Page IconTo Previous Page
Loading...
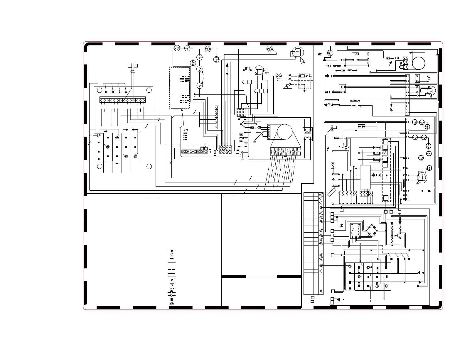
Fig. 19Wiring Diagram
A01378
RED
LS FRS2
RED
RED
FRS1
(WHEN USED)
ALS2
DSS
ORN
LGPS
YEL
NOTE 9
LPS
NOTE 9
(WHEN USED)
RED
YEL
ORN
(WHEN USED)
NOTE 7
ALS1
ORN
SWITCH
12
HEAT
SET-UP
SWITCH
NORM
HI HT
LO HT
*
ON
OFF
OFF
ON
BLOWER-
OFF DELAY
(SEC.)
SWITCH
3
4
90 SEC
135 SEC
*
180 SEC
225 SEC
ON
OFF
OFF
ON
2-STAGE
FURNACE
CONTROL
FA CTORY
SETTINGS
123 4
ON
OFF
3
2
1
BLU
BLOWER-OFF DELAY
BLOWER-OFF DELAY
LOW-HEAT ONLY
HIGH-HEAT ONLY
*
RED
RED
ORN
W2 Com
24V
W/W1 Y /Y2 R G HUM
LED
S
M
TJ
TWIN
TEST
12
11 10
GRN/YEL
BRN
PL1
WHT
BLK
GRY
YEL
3
2
1
9
87
WHT
FSE
BLK
GRY
BRN
HPS
BRN
HI
P
BLU
M
IDM
HSI
GRN/YEL
ILK
JB
L1
WHT
PL6
RED
BLK
WHT
BLK
WHT
12
123
PL3
WHT
BLK
RED
PL2
PR1
PR2
L1
L2
COMMON
HI-COOL
HI-GAS
HEAT
EAC-2
EAC-1
LO-GAS
HEAT
SPARE
SEC1
FU1
SEC2
RED
BLU
BLWM
WHT
BLK
TRAN
RED
BLU
WHT
BLK
GV
C
FUSED DISCONNECT
SWITCH (WHEN REQ'D)
NOTE #1
BLK
WHTL2
FU2
CONNECTION DIAGRAM
ORN
16
YEL
BLU
BLK
BRN
RED
YEL
YEL
BLU
BLK
WHT
BLK
BLK
BLK
GRN
BLU
RED
RED
CFM
PER
TON
AC
HP
GAS
HEAT
TEMP
RISE
CONTINUOUS
-
FAN
CFM
COOL
SIZE
COOL
GRY
5
4
3
2
1
BLK
WHT
YEL
9
1
16
8
O
RN
B
L
K
G
R
N
W
H
T
V
I
O
B
L
K
RE
D
B
RN
Y
E
L
Y
E
L
B
L
U
G
RN
B
L
K
ORN
BLU
Y1
O
YEL
AFS
BLU REDORN
GRN
GRN
RED
BLU
AB
C
D
14
DEHUM
PL4
G
R
N
/
Y
E
L
PL8
PL9
NOTE 15
PL5
PL5
IND
PL7
1
SCHEMATIC DIAGRAM
(NATURAL GAS & PROPANE)
BK/PWM 10
OUT
+
16
OUT
-
8
EM/W2 13
R12
C1 1
C2 3
W/W1 2
ADJ 7
G15
H EAT 11
Y/Y2 14
O9
COOL 5
DELAY 4
Y1 6
Y1
O
BLWM-CTL
PL9
LEGEND
AFS AIRFLOW SELECTOR
ALS1 AUXILIARY LIMIT SWITCH, OVERTEMP. MANUAL RESET, SPST (N.C.)
ALS2 AUXILIARY LIMIT SWITCH, OVERTEMP. AUTO RESET, SPST (N.C.)
BHI / LOR BLOWER MOTOR SPEED CHANGE RELAY, SPDT
BHT / CLR BLOWER MOTOR SPEED CHANGE RELAY, SPDT
BLWM BLOWER MOTOR, ICM2
+-
CTL
=
CONTROL
-
PWR
=
POWER
BLWR BLOWER MOTOR RELAY, SPST (N.O.)
CPU MICROPROCESSOR AND CIRCUITRY
DSS DRAFT SAFEGUARD SWITCH (N.C.)
EAC-1 ELECTRONIC AIR CLEANER CONNECTION (115 VAC, 1 AMP MAX.)
EAC-2 ELECTRONIC AIR CLEANER CONNECTION (COMMON)
FRS1 FLAME ROLLOUT SWITCH OVERTEMP. MANUAL RESET, SPST (N.C.)
FRS2 FLAME ROLLOUT SWITCH OVERTEMP. MANUAL RESET, SPST (N.C.)
FSE FLAME-PROVING SENSOR ELECTRODE
FU1 FUSE, 3 AMP, AUTOMOTIVE BLADE TYPE, FACTORY INSTALLED
FU2 FUSE, FIELD INSTALLED
GV GAS VALVE, REDUNDANT LOW-HEAT OPERATORS, 2-STAGE
HPS HIGH-HEAT PRESSURE SWITCH, SPST (N.O.)
HPSR HIGH-HEAT PRESSURE SWITCH RELAY, SPST (N.C.)
HSI HOT-SURFACE IGNITER (115 VAC)
HSIR HOT-SURFACE IGNITOR RELAY, SPST (N.O.)
HUM 24VAC HUMIDIFIER CONNECTION (0.5 AMP. MAX.)
IDM INDUCED DRAFT MOTOR, 2-SPEED, SHADED-POLE
IDR INDUCER MOTOR RELAY, SPST (N.O.)
IHI / LOR INDUCER MOTOR SPEED CHANGE RELAY, SPDT
ILK BLOWER DOOR INTERLOCK SWITCH, SPST (N.O.)
IND INDUCTOR (NOTE 16)
JB JUNCTION BOX
LED LIGHT-EMITTING DIODE FOR STATUS CODES
LGPS LOW GAS-PRESSURE SWITCH, SPST (N.O.)
LPS LOW-HEAT PRESSURE SWITCH, SPST (N.O.)
LS LIMIT SWITCH, OVERTEMPERATURE-AUTO RESET, SPST (N.C.)
MGVR MAIN GAS VALVE RELAY DPST (N.O.)
-
1 = VALVE
-
2 = HUMIDIFIER
N / A NOT APPLICABLE
PL1 12-CIRCUIT CONNECTOR
PL2 9-CIRCUIT CONNECTOR
PL3 3-CIRCUIT IDM CONNECTOR
PL4 6-CIRCUIT CONNECTOR
PL5 1-CIRCUIT CONNECTOR (NOTE 16)
PL6 2-CIRCUIT HSI CONNECTOR
PL7 14-CIRCUIT CONNECTOR
PL8 5-CIRCUIT CONNECTOR
PL9 16-CIRCUIT CONNECTOR
SW1 HIGH-HEAT-ONLY SWITCH, SPST (MANUAL)
*
SW2 LOW-HEAT-ONLY SWITCH, SPST (MANUAL)
*
SW3 & 4 BLOWER-OFF DELAY SETTING SWITCHES,
SPST (MANUAL)
*
TJ TWINNING JUMPER,
SPDT(MANUAL CHANGE-OVER). (NOTE16)
TRAN TRANSFORMER-115VAC/24VAC
TWIN/TEST 1-CIRCUIT TWINNING BUSS CONNECTOR,
ALSO STATUS CODE RECALL. (NOTE 16)
JUNCTION
TERMINAL
CONTROL TERMINAL
FACTORY POWER WIRING (115VAC)
FACTORY CONTROL WIRING (24VAC)
FIELD POWER WIRING (115VAC)
FIELD CONTROL WIRING (24VAC)
CONDUCTOR ON CONTROL
FIELD WIRING SCREW TERMINAL
FIELD GROUND
EQUIPMENT GROUND
FIELD SPLICE
PLUG RECEPTACLE
AIRFLOW SELECTOR JUMPER PINS
AIRFLOW SELECTOR FACTORY SETTING
NOTES:
1. Use only copper wire between the disconnect switch and the furnace.
2. If any of the original wire, must be replaced, use the same or equivalent type.
3. Inducer (IDM) motor contains internal auto-reset thermal overload switch.
4. Blower motor airflow selections are for nominal conditions. See Installation
Instructions for details on optimum airflow selections.
5. Blower motor (BLWM) is locked-rotor overload protected by redundant
electronic control circuits. Restart is attempted every 15 seconds for 2 minutes,
after which it locks OFF. Reset by turning OFF all control and/or power inputs.
6. Replace only with a 3-AMP fuse.
7. Auxiliary limit switches (ALS1 &2) used on some horizontal and some
downflow models.
8. This wire must be connected to furnace sheet metal for control to prove flame.
9. Factory connected when LGPS not used.
10. Symbols are an electrical representation only.
11. BLOWER-ON DELAY: Gas heating 45 seconds, Cooling/Heat Pump 2 sec.
12. Cooling/Heat Pump BLOWER-OFF DELAY is 90 seconds.
13. IGNITION-LOCKOUT will occur after four consecutive unsuccessful
trials-for-ignition. Control will automatically reset after three hours.
14. Control must be grounded at pin 10 of 12-pin connector.
15. Inductor is used on 060 or
-
20 cooling airflow size furnaces only.
PL5 connectors are joined without IND on other furnace sizes.
16. Twinning is not permitted with ICM2
+
blower motors. Keep twinning jumper
in M position.
17. Terminals (HI-COOL, HI-GAS-HEAT, and LO-GAS-HEAT) are not used for
ICM2
+
BLWM. Do not remove electrical insulators.
COMPONENT TEST
To initiate the component test sequence with no thermostat inputs and
with all inducer Post-Purge and Blower-Off Delay periods completed,
short the "TWIN/TEST" terminal to the "
C
OM" terminal for about two
seconds. The control will turn ON the inducer motor Low-Speed, inducer
motor High-Speed, HSI, blower motor Continuous-Fan Speed, blower
motor High-Gas-Heat Speed, and blower motor High-Cool Speed for
7-15 seconds each. Neither the gas valve nor the humidifier will be
turned ON.
HI
M-HI
M-LO
LO
315
350
400
AC
HP
EFFY
HP
CMFT
MID
HI
M-HI
MED
LO
HI
WHT
WHT
GRN
NOTE 4
NOTE 17
322293-101 REV. G
L1
BLWR
TO 115VAC FIELD DISCONNECT SWITCH
NOTE 1
EQUIPMENT
GROUND
LO-GAS-HEAT
HI-GAS-HEAT
SPARE
COMMON
HSIR EAC-1
EAC-2
PR2
11 5 VA C
PR1
TRAN
24VAC
IDR
L2
ILK
BHI / LOR
BHT / CLR
IHI / LOR
SEC1
FU1
NOTE 6
HI-COOL
SEC2
LS
ALS1
DSS
ALS2
FRS1
(WHEN
USED)
FRS2
N/A
12
2
3
MGVR- 2
9
6
NOTE 9
(WHEN USED)
TWIN
TEST
S
M
W/W1
R
HUM
W2
Y/Y2
G
MGVR- 1
NOTE 9
HPS
5
4
1
10
7
8
N/A
N/A
FSE
11
HI
M
P
C
NOTE 8
PL1
CPU
LGPS
SW1
GV
SEE BLWM-CTL
PL5
PL8
BLWM-PWR
PL5
IND
NOTE 15
5
4
3
2
1
Y
Y2
24
VA C
G
W2
5
6
4
1
2
PL4
BLWR
BHT / CLR
JUMPER
TJ
TWINNING
C1
3
BHI / LOR
PL7
10 12
13
2
SW4
SW3
SW2
14
9
8
6
5
11
1
3
4
7
HI
M-HI
M-LO
LO
400
350
315
AC
HP
EFFY
HP
CMFT
HI
M-HI
MID
HI
MED
LO
CFM
PER
TON
AC
HP
GAS
HEAT
TEMP
RISE
CONTINUOUS
-
FAN
CFM
COOL
SIZE
AB CD
C
OM
D
E
H
U
M
COOL
AFS
NOTE
16
NOTE 4
LPS
NOTE 17
Connect VIO wire to pin
A, B, C, or D as
designated on furnace
rating plate as "PIN".
(WHEN USED)
SPARE
GRN/YEL
GND
LO
8
7
4
PL3
N/A
N/A
2
6
5
1
HPSR
COM
HI
3
2
1
PL6
IDM
PL2
9
2
HSI
1
3
GRN/YEL
4
YEL
ORN
VIO
3
3
BLK
BRN
4
3
3
4
3
3
14

Other manuals for Bryant 333JAV

Related product manuals