EasyManua.ls Logo

Bryant 589A - 208;230-3-60 Wiring Diagram, Units 588 A030-060

Bryant 589A
52 pages
Print Icon
To Next Page IconTo Next Page
To Next Page IconTo Next Page
To Previous Page IconTo Previous Page
To Previous Page IconTo Previous Page
Loading...
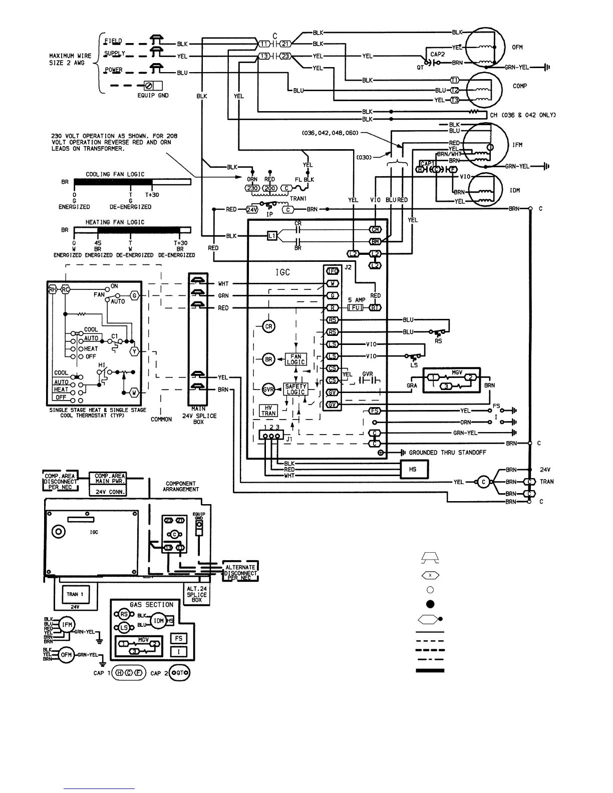
LEGEND
AWG American Wire Gage
BR Blower Relay
C—Contactor
CAP Capacitor
CH Crankcase Heater
COMP Compressor Motor
CR Combustion Relay
EQUIP Equipment
FL Fuse Link
FS Flame Sensor
FU Fuse
GND Ground
GVR Gas Valve Relay
HS Hall Effect Sensor
HV TRAN High-Voltage Transformer
I—Ignitor
IDM Induced-Draft Motor
IFM Indoor-Fan Motor
IGC Integrated Gas Control
IP Internal Protector
LS Limit Switch
MGV Main Gas Valve
NEC National Electrical Code
OFM Outdoor-Fan Motor
PWR Power
QT Quadruple Terminal
RS Rollout Switch
TRAN Transformer
Field Splice
Terminal (Marked)
Terminal (Unmarked)
Splice
Splice (Marked)
Factory Wiring
Field Control Wiring
Field Power Wiring
Accessory or Optional Wiring
To Indicate Common Potential
Only, Not to Represent Wiring
NOTES:
1. If any of the original wire furnished must be replaced, it must be replaced
with type 90 C wire or its equivalent.
2. Use copper conductors only.
Fig. 27 208/230-3-60 Wiring Diagram, Units 588A030-060
—28—

Table of Contents

Related product manuals