EasyManua.ls Logo

Bryant 589A - 589 A024-036 Without Base Rail, Unit Dimensions

Bryant 589A
52 pages
Print Icon
To Next Page IconTo Next Page
To Next Page IconTo Next Page
To Previous Page IconTo Previous Page
To Previous Page IconTo Previous Page
Loading...
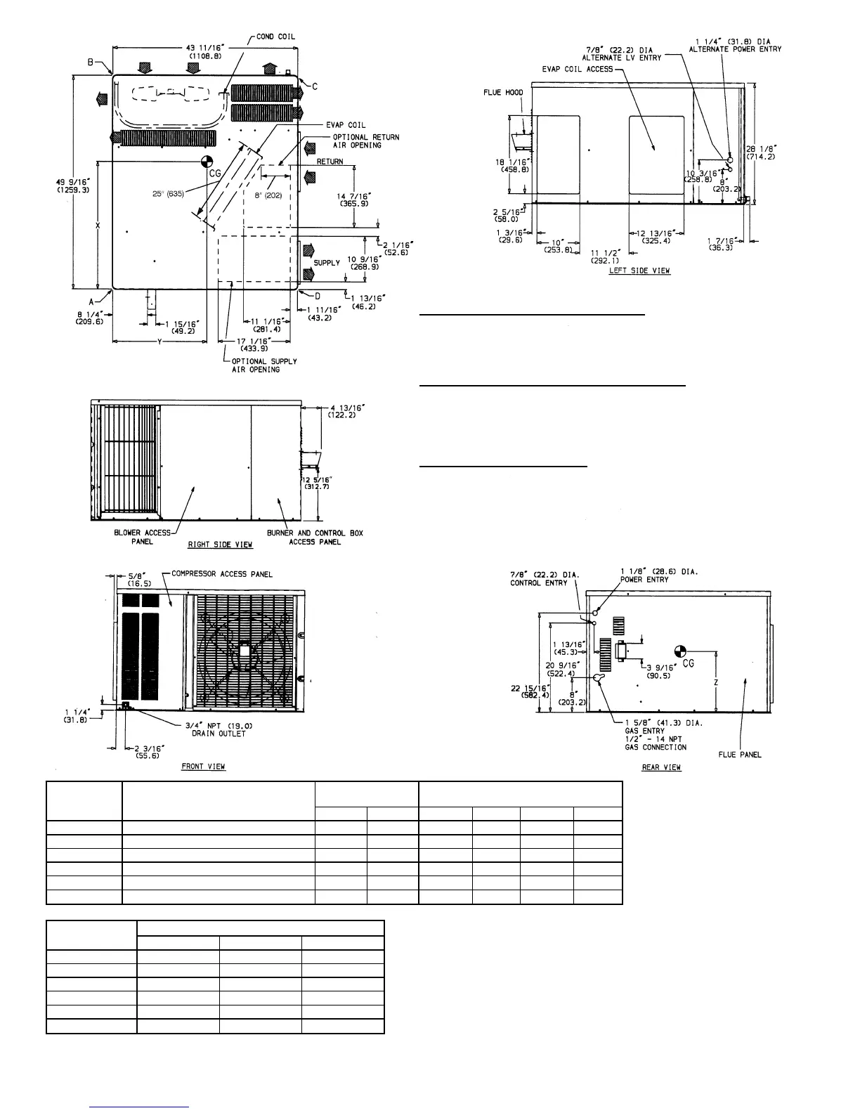
REQ’D CLEARANCES FOR SERVICING. in. (mm)
Duct panel .............................0
Unit top ...........................36(914)
Side opposite ducts .....................36(914)
Compressor access .....................36(914)
(Except for NEC requirements)
REQ’D CLEARANCES TO COMBUSTIBLE MAT’L. in. (mm)
Maximum extension of overhangs ...............48(1219)
Unit top ...........................14(356)
Duct side of unit ........................2(51)
Side opposite ducts .....................14(356)
Bottom of unit ...........................0
Flue panel .........................36(914)
NEC REQ’D CLEARANCES. in. (mm)
Between units, control box side ................42(1067)
Unit and ungrounded surfaces, control box side .........36(914)
Unit and block or concrete walls and other grounded
surfaces, control box side ..................42(1067)
UNIT
589A
ELECTRICAL
CHARACTERISTICS
UNIT WEIGHT
CORNER WEIGHT
(lb/kg)
lb kg A B C D
024040 208/230-1-60 333 151 104/47 50/23 130/59 49/22
024060 208/230-1-60 345 157 107/49 53/24 133/60 52/24
030040 208/230-1-60 336 153 97/44 66/30 118/54 55/25
030060/080 208/230-1-60 348 158 100/45 69/31 121/55 58/26
036060/080 208/230-1-60, 208/230-3-60, 460-3-60 366 166 94/43 84/38 117/53 71/32
036100/120 208/230-1-60, 208/230-3-60, 460-3-60 378 172 97/44 87/40 120/55 74/34
UNIT
589A
CENTER OF GRAVITY (in./mm)
XYZ
024040 26.71/678 20.06/510 12.65/321
024060 26.64/677 20.12/511 12.65/321
030040 27.06/687 21.05/535 12.65/321
030060/080 26.98/685 21.07/535 12.65/321
036060/080 27.14/689 21.10/536 12.65/321
036100/120 27.06/687 21.12/536 12.65/321
LEGEND
CG Center of Gravity
COND Condenser
LV Low Voltage
MAT’L Material
NEC National Electrical Code
REQ’D Required
NOTES:
1. Clearances must be maintained to prevent recirculation of air from outdoor-
fan discharge.
2. Adequate clearance around air openings into combustion chamber must
be provided.
Fig. 6 589A024-036 Without Base Rail, Unit Dimensions
—6—

Table of Contents

Related product manuals