EasyManua.ls Logo

Bryant 589A - 589 A042-060 with Optional Base Rail, Unit Dimensions

Bryant 589A
52 pages
Print Icon
To Next Page IconTo Next Page
To Next Page IconTo Next Page
To Previous Page IconTo Previous Page
To Previous Page IconTo Previous Page
Loading...
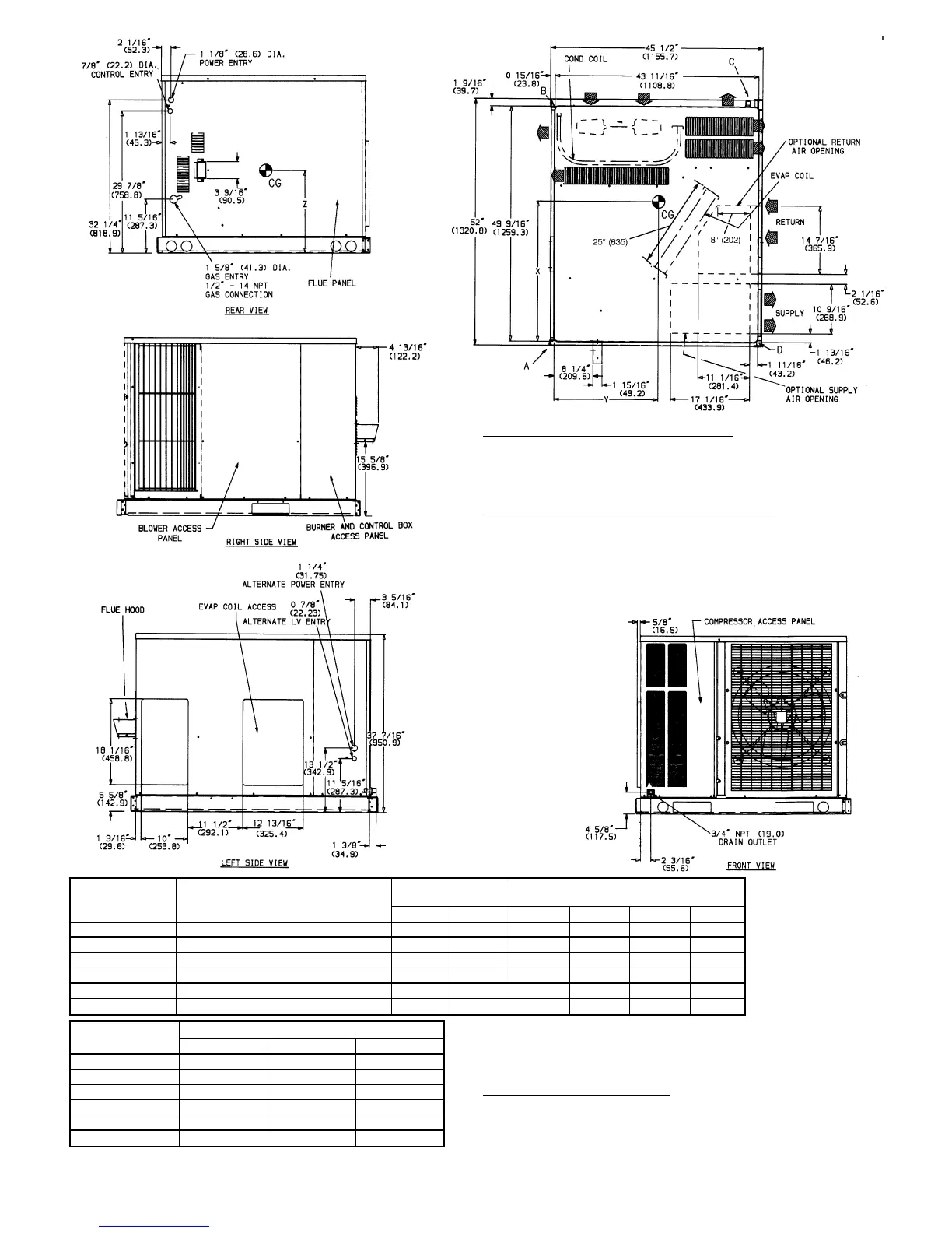
REQ’D CLEARANCES FOR SERVICING. in. (mm)
Duct panel .............................0
Unit top ...........................36(914)
Side opposite ducts .....................36(914)
Compressor access .....................36(914)
(Except for NEC requirements)
REQ’D CLEARANCES TO COMBUSTIBLE MAT’L. in. (mm)
Maximum extension of overhangs ...............48(1219)
Unit top ...........................14(356)
Duct side of unit ........................2(51)
Side opposite ducts .....................14(356)
Bottom of unit ...........................0
Flue panel .........................36(914)
LEGEND
CG Center of Gravity
COND Condenser
LV Low Voltage
MAT’L Material
NEC National Electrical Code
REQ’D Required
UNIT
589A
ELECTRICAL
CHARACTERISTICS
UNIT WEIGHT
CORNER WEIGHT
(lb/kg)
lb kg A B C D
042060/080 208/230-1-60, 208/230-3-60, 460-3-60 415 189 106/48 97/44 126/57 86/39
042100/120 208/230-1-60, 208/230-3-60, 460-3-60 427 194 109/50 100/45 129/59 89/40
048080 208/230-1-60, 208/230-3-60, 460-3-60 446 293 115/52 91/41 164/75 76/35
048100/120/140 208/230-1-60, 208/230-3-60, 460-3-60 458 208 118/54 94/43 167/76 79/36
060080 208/230-1-60, 208/230-3-60 477 217 123/56 99/45 173/79 82/37
060100/120/140 208/230-1-60, 208/230-3-60 489 222 126/57 102/46 173/79 88/40
UNIT
589A
CENTER OF GRAVITY (in./mm)
XYZ
042060/080 26.55/674.4 21.22/539.0 17.66/448.6
042100/120 26.50/673.0 21.24/539.6 17.66/448.6
048080 28.25/717.6 20.04/509.0 17.66/448.6
048100/120/140 28.16/715.3 20.08/510.0 17.66/448.6
060080 28.18/715.6 20.19/512.8 17.66/448.6
060100/120/140 27.79/705.9 20.23/513.8 17.66/448.6
NOTES:
1. Clearances must be maintained to prevent recirculation of air from outdoor-
fan discharge.
2. Adequate clearance around air openings into combustion chamber must be
provided.
NEC REQ’D CLEARANCES. in. (mm)
Between units, control box side ................42(1067)
Unit and ungrounded surfaces, control box side .........36(914)
Unit and block or concrete walls and other grounded
surfaces, control box side ..................42(1067)
Fig. 9 589A042-060 With Optional Base Rail, Unit Dimensions
—9—

Table of Contents

Related product manuals