EasyManua.ls Logo

Bryant 589A - 589 A024-036 with Optional Base Rail, Unit Dimension

Bryant 589A
52 pages
Print Icon
To Next Page IconTo Next Page
To Next Page IconTo Next Page
To Previous Page IconTo Previous Page
To Previous Page IconTo Previous Page
Loading...
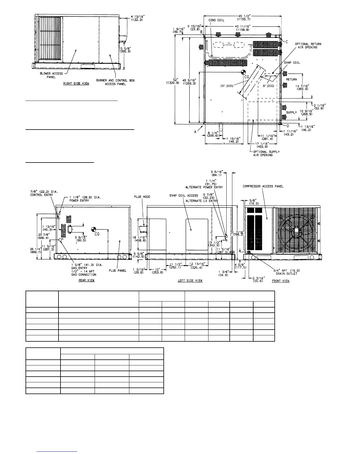
REQ’D CLEARANCES FOR SERVICING. in. (mm)
Duct panel ...........................0
Unit top .........................36(914)
Side opposite ducts ....................36(914)
Compressor access ....................36(914)
(Except for NEC requirements)
REQ’D CLEARANCES TO COMBUSTIBLE MAT’L. in. (mm)
Maximum extension of overhangs .............48(1219)
Unit top .........................14(356)
Duct side of unit ......................2(51)
Side opposite ducts ....................14(356)
Bottom of unit .........................0
Flue panel ........................36(914)
NEC REQ’D CLEARANCES. in. (mm)
Between units, control box side ..............42(1067)
Unit and ungrounded surfaces, control box side .......36(914)
Unit and block or concrete walls and other grounded
surfaces, control box side ................42(1067)
UNIT
589A
ELECTRICAL
CHARACTERISTICS
UNIT WEIGHT
CORNER WEIGHT
(lb/kg)
lbkgABCD
024040 208/230-1-60 357 163 110/50 56/25 136/62 55/25
024060 208/230-1-60 369 168 113/51 59/27 139/63 58/26
030040 208/230-1-60 360 164 103/47 72/33 124/56 61/28
030060/080 208/230-1-60 372 169 106/48 75/34 127/58 64/29
036060/080 208/230-1-60, 208/230-3-60, 460-3-60 390 177 100/45 90/41 123/56 77/35
036100/120 208/230-1-60, 208/230-3-60, 460-3-60 402 183 103/47 93/42 127/57 80/36
UNIT
589A
CENTER OF GRAVITY (in./mm)
XYZ
024040 26.57/674.9 20.17/512.3 14.96/380.0
024060 26.51/673.3 20.22/513.6 14.96/380.0
030040 26.90/683.3 21.09/535.7 14.96/380.0
030060/080 26.83/681.5 21.11/536.2 14.96/380.0
036060/080 26.99/685.5 21.14/537.0 14.96/380.0
036100/120 26.92/683.8 21.14/537.0 14.96/380.0
LEGEND
CG Center of Gravity
COND Condenser
LV Low Voltage
MAT’L Material
NEC National Electrical Code
REQ’D Required
NOTES:
1. Clearances must be maintained to prevent recirculation of air from outdoor-
fan discharge.
2. Adequate clearance around air openings into combustion chamber must
be provided.
Fig. 7 589A024-036 With Optional Base Rail, Unit Dimensions
—7—

Table of Contents

Related product manuals